Woning Emmastraat 20 Meppel

Emmastraat 20, 7941HR Meppel

Ontvang updates voor Koninginnebuurt

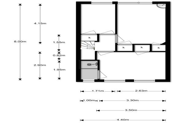
Het adres van deze woning uit 1954 is Emmastraat 20 te Meppel. Het pand heeft een oppervlakte van 70m² en een perceeloppervlakte van 153m² en heeft 4 kamers kamers waarvan 3 slaapkamers. De geschatte waarde van deze woning is € 167.000.

Bekijk alle woningen in Koninginnebuurt

Gegevens van Eengezinswoning, halfvrijstaande woning

Bouwjaar
1954
Geschatte waarde
€ 167.000
Oppervlakte
70 m2
Inhoud
225 m3
Aantal kamers
4 kamers
Slaapkamers
3
Badkamers
1 badkamer en 1 apart toilet
Soort bouw
Bestaande bouw
Eigendomssituatie
Volle eigendom
Ligging
Aan rustige weg en in woonwijk
Tuin
Achtertuin
Achtertuin
88 m² (17,5m diep en 5m breed)

Voorzieningen in de buurt

Boodschappen0,4 km
Grote supermarkt0,7 km
Cafetaria0,3 km
Restaurant0,3 km
Huisarts1,0 km
Ziekenhuis2,5 km
Kinderdagverblijf0,3 km
BSO0,3 km
Alle voorzieningen in Koninginnebuurt

Binnenkijken bij Emmastraat 20 te Meppel

Meer meldingen in deze omgeving

Onroerend goed
Dinsdag 11-11-2025
Zuideinde 66, 7941GJ Meppel

Nieuw bedrijf
November 2025
Barend Schuurmanstraat 10, 7941XT Meppel

Nieuw bedrijf
November 2025
Emmastraat 20, 7941HR Meppel

112 melding
Zondag 9-11-2025 om 00:29
Parallelweg, 7941HH Meppel

112 melding
Zaterdag 8-11-2025 om 13:45
Wilhelminapark, Meppel

Binnenkijken bij
Donderdag 30-10-2025
Leonard Springerlaan 357, 7941GX Meppel

Binnenkijken bij
Donderdag 30-10-2025
Leonard Springerlaan 352, 7941GX Meppel

Binnenkijken bij
Woensdag 29-10-2025
Prinses Margrietlaan 7, 7941XG Meppel

Direct een e-mail ontvangen bij nieuwe meldingen in deze regio?

Meld je dan GRATIS aan voor de Oozo Alert service voor Koninginnebuurt

Instellen

Meer nieuws in Koninginnebuurt

Weten hoe eenvoudig het is om af te vallen? Zonder pillen en smeersels en zonder je in het zweet te werken!
Kijk op eenvoudig-afvallen.nl

© 2012 - 2025 OOZO.nl - info@oozo.nl - Gegevens verwijderen? | Disclaimer | Privacy statement