Woning Catharinastraat 17 Meppel

Catharinastraat 17, 7941JD Meppel

Ontvang updates voor Koninginnebuurt

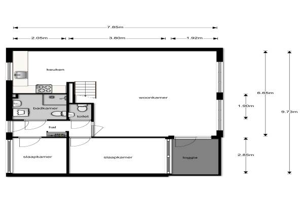
Het adres van deze woning uit 1999 is Catharinastraat 17 te Meppel. Het pand heeft een oppervlakte van 84m² en heeft 4 kamers kamers waarvan 2 slaapkamers. De geschatte waarde van deze woning is € 189.000.

Bekijk alle woningen in Koninginnebuurt

Gegevens van Galerijflat

Bouwjaar
1999
Geschatte waarde
€ 189.000
Oppervlakte
84 m2
Inhoud
335 m3
Aantal kamers
4 kamers
Slaapkamers
2
Badkamers
1 badkamer en 1 apart toilet
Soort bouw
Bestaande bouw
Eigendomssituatie
Volle eigendom
Ligging
In centrum en in woonwijk

Voorzieningen in de buurt

Boodschappen0,4 km
Grote supermarkt0,7 km
Cafetaria0,3 km
Restaurant0,3 km
Huisarts1,0 km
Ziekenhuis2,5 km
Kinderdagverblijf0,3 km
BSO0,3 km
Alle voorzieningen in Koninginnebuurt

Binnenkijken bij Catharinastraat 17 te Meppel

Meer meldingen in deze omgeving

Binnenkijken bij
Donderdag 5-3-2026
Heerengracht 7B, 7941JH Meppel

Nieuw bedrijf
Maart 2026
Zuideinde 54, 7941GJ Meppel

Nieuw bedrijf
Maart 2026
Stationsweg 4102, 7941HC Meppel

Binnenkijken bij
Maandag 2-3-2026
Catharinastraat 1733, 7941JD Meppel

112 melding
Zaterdag 28-2-2026 om 19:16
Stationsweg, Meppel

112 melding
Zaterdag 28-2-2026 om 19:14
Stationsweg, Meppel

Binnenkijken bij
Zaterdag 28-2-2026
Emmastraat 86, 7941HS Meppel

Binnenkijken bij
Vrijdag 27-2-2026
Wilhelminastraat 32, 7941HV Meppel

Direct een e-mail ontvangen bij nieuwe meldingen in deze regio?

Meld je dan GRATIS aan voor de Oozo Alert service voor Koninginnebuurt

Instellen

Meer nieuws in Koninginnebuurt

Weten hoe eenvoudig het is om af te vallen? Zonder pillen en smeersels en zonder je in het zweet te werken!
Kijk op eenvoudig-afvallen.nl

© 2012 - 2026 OOZO.nl - info@oozo.nl - Gegevens verwijderen? | Disclaimer | Privacy statement