Woning De Bloemen 10 Meppel

De Bloemen 10, 7943LV Meppel

Ontvang updates voor Veldenbuurt

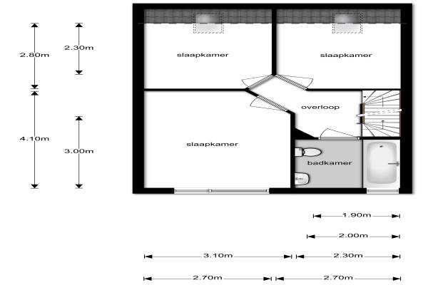
Het adres van deze woning uit 1992 is De Bloemen 10 te Meppel. Het pand heeft een oppervlakte van 100m² en een perceeloppervlakte van 143m² en heeft 4 kamers kamers waarvan 3 slaapkamers. De geschatte waarde van deze woning is € 185.000.

Bekijk alle woningen in Veldenbuurt

Gegevens van Eengezinswoning, tussenwoning

Bouwjaar
1992
Geschatte waarde
€ 185.000
Oppervlakte
100 m2
Inhoud
300 m3
Aantal kamers
4 kamers
Slaapkamers
3
Badkamers
1 badkamer en 1 apart toilet
Soort bouw
Bestaande bouw
Eigendomssituatie
Volle eigendom
Ligging
Aan rustige weg en in woonwijk
Tuin
Achtertuin en voortuin
Achtertuin
69 m² (12,5m diep en 5,5m breed)

Voorzieningen in de buurt

Boodschappen0,6 km
Grote supermarkt0,6 km
Cafetaria0,6 km
Restaurant1,6 km
Huisarts1,1 km
Ziekenhuis1,7 km
Kinderdagverblijf0,6 km
BSO0,6 km
Alle voorzieningen in Veldenbuurt

Binnenkijken bij De Bloemen 10 te Meppel

Meer meldingen in deze omgeving

Nieuw bedrijf
Oktober 2025
Hogestuk 25, 7943JW Meppel

112 melding
Zondag 5-10-2025 om 00:09
Hogestuk, Meppel

Binnenkijken bij
Donderdag 2-10-2025
Waardeel 40, 7943LK Meppel

Binnenkijken bij
Donderdag 25-9-2025
Koenermaat 67, 7943JK Meppel

Binnenkijken bij
Woensdag 24-9-2025
Rammersveld 15, 7943LS Meppel

Binnenkijken bij
Vrijdag 19-9-2025
Doornheegde 37, 7943JR Meppel

112 melding
Dinsdag 16-9-2025 om 08:18
Dingspil, 7943LC Meppel

Nieuw bedrijf
September 2025
Klaverveld 20, 7943MG Meppel

Direct een e-mail ontvangen bij nieuwe meldingen in deze regio?

Meld je dan GRATIS aan voor de Oozo Alert service voor Veldenbuurt

Instellen

Meer nieuws in Veldenbuurt

Weten hoe eenvoudig het is om af te vallen? Zonder pillen en smeersels en zonder je in het zweet te werken!
Kijk op eenvoudig-afvallen.nl

© 2012 - 2025 OOZO.nl - info@oozo.nl - Gegevens verwijderen? | Disclaimer | Privacy statement