Woning Waterhoen 15 Meppel

Waterhoen 15, 7943SK Meppel

Ontvang updates voor Vogelbuurt

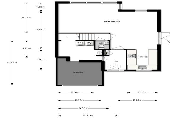
Het adres van deze woning uit 1997 is Waterhoen 15 te Meppel. Het pand heeft een oppervlakte van 109m² en een perceeloppervlakte van 228m² en heeft 4 kamers kamers waarvan 3 slaapkamers. De geschatte waarde van deze woning is € 239.000.

Bekijk alle woningen in Vogelbuurt

Gegevens van Eengezinswoning, hoekwoning

Bouwjaar
1997
Geschatte waarde
€ 239.000
Oppervlakte
109 m2
Inhoud
375 m3
Aantal kamers
4 kamers
Slaapkamers
3
Badkamers
1 badkamer en 1 apart toilet
Soort bouw
Bestaande bouw
Eigendomssituatie
Volle eigendom
Ligging
Aan rustige weg en in woonwijk
Tuin
Achtertuin, voortuin en zijtuin
Achtertuin
41 m² (6,5m diep en 6,25m breed)

Voorzieningen in de buurt

Boodschappen1,3 km
Grote supermarkt1,3 km
Cafetaria1,3 km
Restaurant1,1 km
Huisarts1,0 km
Ziekenhuis1,1 km
Kinderdagverblijf0,9 km
BSO0,8 km
Alle voorzieningen in Vogelbuurt

Binnenkijken bij Waterhoen 15 te Meppel

Meer meldingen in deze omgeving

Nieuw bedrijf
December 2025
Lepelaar 29, 7943SJ Meppel

Binnenkijken bij
Woensdag 26-11-2025
Waterhoen 13, 7943SK Meppel

Binnenkijken bij
Dinsdag 25-11-2025
Oosterboerweg 70, 7943KD Meppel

Nieuw bedrijf
November 2025
Lepelaar 131, 7943SR Meppel

Binnenkijken bij
Zaterdag 15-11-2025
Torenvalk 21, 7943SC Meppel

Nieuw bedrijf
November 2025
Lepelaar 93, 7943SR Meppel

Nieuw bedrijf
November 2025
Torenvalk 26, 7943SC Meppel

112 melding
Woensdag 29-10-2025 om 12:20
Patrijs, Meppel

Direct een e-mail ontvangen bij nieuwe meldingen in deze regio?

Meld je dan GRATIS aan voor de Oozo Alert service voor Vogelbuurt

Instellen

Meer nieuws in Vogelbuurt

Weten hoe eenvoudig het is om af te vallen? Zonder pillen en smeersels en zonder je in het zweet te werken!
Kijk op eenvoudig-afvallen.nl

© 2012 - 2025 OOZO.nl - info@oozo.nl - Gegevens verwijderen? | Disclaimer | Privacy statement