Woning Leliestraat 50 Middelburg

Leliestraat 50, 4332TL Middelburg

Ontvang updates voor Nieuw Middelburg

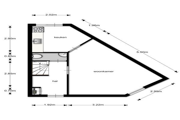
Het adres van deze woning uit 1935 is Leliestraat 50 te Middelburg. Het pand heeft een oppervlakte van 70m² en een perceeloppervlakte van 87m² en heeft 3 kamers kamers waarvan 2 slaapkamers. De geschatte waarde van deze woning is € 135.000.

Bekijk alle woningen in Nieuw Middelburg

Gegevens van Eengezinswoning, tussenwoning

Bouwjaar
1935
Geschatte waarde
€ 135.000
Oppervlakte
70 m2
Inhoud
300 m3
Aantal kamers
3 kamers
Slaapkamers
2
Badkamers
1 badkamer en 1 apart toilet
Soort bouw
Bestaande bouw
Eigendomssituatie
Volle eigendom
Ligging
In woonwijk
Tuin
Achtertuin
Achtertuin
16 m² (8m diep en 2m breed)

Voorzieningen in de buurt

Boodschappen0,4 km
Grote supermarkt0,4 km
Cafetaria0,2 km
Restaurant0,3 km
Huisarts0,9 km
Ziekenhuis1,7 km
Kinderdagverblijf0,4 km
BSO0,8 km
Alle voorzieningen in Nieuw Middelburg

Binnenkijken bij Leliestraat 50 te Middelburg

Meer meldingen in deze omgeving

Binnenkijken bij
Donderdag 30-10-2025
Veerseweg 12, 4332BG Middelburg

Nieuw bedrijf
Oktober 2025
Zacharias Jansenstraat 6, 4332VE Middelburg

Binnenkijken bij
Maandag 22-9-2025
Koningin Julianastraat 21, 4332VW Middelburg

Binnenkijken bij
Vrijdag 19-9-2025
Veersesingel 204, 4332TG Middelburg

Binnenkijken bij
Vrijdag 25-7-2025
Prinses Beatrixstraat 70, 4332XL Middelburg

Nieuw bedrijf
Juli 2025
Veersesingel 270, 4332TJ Middelburg

Binnenkijken bij
Zaterdag 12-7-2025
Leliestraat 13, 4332TK Middelburg

Binnenkijken bij
Zaterdag 12-7-2025
Leliestraat 1, 4332TK Middelburg

Direct een e-mail ontvangen bij nieuwe meldingen in deze regio?

Meld je dan GRATIS aan voor de Oozo Alert service voor Nieuw Middelburg

Instellen

Meer nieuws in Nieuw Middelburg

Weten hoe eenvoudig het is om af te vallen? Zonder pillen en smeersels en zonder je in het zweet te werken!
Kijk op eenvoudig-afvallen.nl

© 2012 - 2025 OOZO.nl - info@oozo.nl - Gegevens verwijderen? | Disclaimer | Privacy statement