Woning Goudplevierhof 3 MIDDELBURG

Goudplevierhof 3, 4332CM MIDDELBURG

Ontvang updates voor Veersepoort

Het adres van deze woning uit 1999 is Goudplevierhof 3 te MIDDELBURG. Het pand heeft een oppervlakte van 159m² en een perceeloppervlakte van 413m² en heeft 4 kamers kamers waarvan 3 slaapkamers. De geschatte waarde van deze woning is € 499.000.

Bekijk alle woningen in Veersepoort

Gegevens van Herenhuis

Bouwjaar
1999
Geschatte waarde
€ 499.000
Oppervlakte
159 m2
Aantal kamers
4 kamers
Slaapkamers
3
Tuin
Tuin

Voorzieningen in de buurt

Boodschappen0,9 km
Grote supermarkt0,8 km
Cafetaria0,8 km
Restaurant0,9 km
Huisarts1,5 km
Ziekenhuis2,4 km
Kinderdagverblijf0,8 km
BSO0,9 km
Alle voorzieningen in Veersepoort

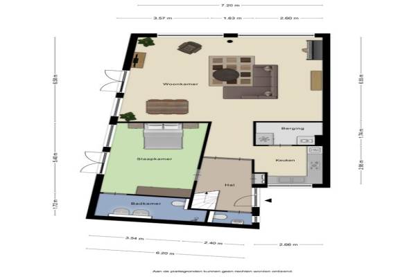
Binnenkijken bij Goudplevierhof 3 te MIDDELBURG

Meer meldingen in deze omgeving

Nieuw bedrijf
Maart 2026
Strandplevierhof 27, 4332DB Middelburg

Nieuw bedrijf
Maart 2026
Zilvermeeuwstraat 2, 4332DG Middelburg

112 melding
Donderdag 19-3-2026 om 12:01
Fazantenhof, 4332XT Middelburg

112 melding
Maandag 2-3-2026 om 09:45
Fazantenhof, 4332XT Middelburg

Binnenkijken bij
Zaterdag 28-2-2026
C.W. Sturmstraat 20, 4333ME Middelburg

Nieuw bedrijf
Februari 2026
Steenloperstraat 6, 4332DD Middelburg

Binnenkijken bij
Zaterdag 21-2-2026
Goudplevierhof 15, 4332CM Middelburg

Binnenkijken bij
Dinsdag 17-2-2026
Scholeksterstraat 11, 4332CD Middelburg

Direct een e-mail ontvangen bij nieuwe meldingen in deze regio?

Meld je dan GRATIS aan voor de Oozo Alert service voor Veersepoort

Instellen

Meer nieuws in Veersepoort

Weten hoe eenvoudig het is om af te vallen? Zonder pillen en smeersels en zonder je in het zweet te werken!
Kijk op eenvoudig-afvallen.nl

© 2012 - 2026 OOZO.nl - info@oozo.nl - Gegevens verwijderen? | Disclaimer | Privacy statement