Woning Noordmede 5 Middelburg

Noordmede 5, 4337AR Middelburg

Ontvang updates voor Dauwendaele

Het adres van deze woning uit 1976 is Noordmede 5 te Middelburg. Het pand heeft een oppervlakte van 111m² en een perceeloppervlakte van 149m² en heeft 5 kamers kamers waarvan 4 slaapkamers. De geschatte waarde van deze woning is € 165.000.

Bekijk alle woningen in Dauwendaele

Gegevens van Eengezinswoning, tussenwoning

Bouwjaar
1976
Geschatte waarde
€ 165.000
Oppervlakte
111 m2
Inhoud
320 m3
Aantal kamers
5 kamers
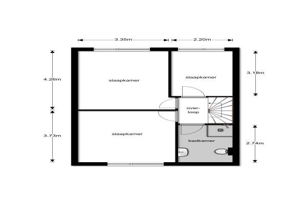
Slaapkamers
4
Badkamers
1 badkamer en 1 apart toilet
Soort bouw
Bestaande bouw
Eigendomssituatie
Volle eigendom
Ligging
Aan rustige weg en in woonwijk
Tuin
Achtertuin en voortuin
Achtertuin
72 m² (12m diep en 6m breed)

Voorzieningen in de buurt

Boodschappen0,6 km
Grote supermarkt0,6 km
Cafetaria0,5 km
Restaurant0,6 km
Huisarts0,5 km
Ziekenhuis0,9 km
Kinderdagverblijf0,4 km
BSO0,4 km
Alle voorzieningen in Dauwendaele

Binnenkijken bij Noordmede 5 te Middelburg

Meer meldingen in deze omgeving

Nieuw bedrijf
Oktober 2025
Meanderhof 87, 4337GP Middelburg

Nieuw bedrijf
Oktober 2025
Granaat 34, 4337MH Middelburg

Nieuw bedrijf
Oktober 2025
Herberdsland 6, 4337CM Middelburg

Binnenkijken bij
Woensdag 29-10-2025
Tappershofstraat 10, 4337VL Middelburg

Nieuw bedrijf
Oktober 2025
Roozenburglaan 157, 4337JD Middelburg

112 melding
Maandag 27-10-2025 om 17:11
Meanderlaan, Middelburg

112 melding
Donderdag 23-10-2025 om 05:57
Vrijlandstraat, Middelburg

112 melding
Donderdag 23-10-2025 om 05:55
Vrijlandstraat, Middelburg

Direct een e-mail ontvangen bij nieuwe meldingen in deze regio?

Meld je dan GRATIS aan voor de Oozo Alert service voor Dauwendaele

Instellen

Meer nieuws in Dauwendaele

Weten hoe eenvoudig het is om af te vallen? Zonder pillen en smeersels en zonder je in het zweet te werken!
Kijk op eenvoudig-afvallen.nl

© 2012 - 2025 OOZO.nl - info@oozo.nl - Gegevens verwijderen? | Disclaimer | Privacy statement