Woning Minaret 19 Middelburg

Minaret 19, 4336JC Middelburg

Ontvang updates voor Middelburg-Zuid

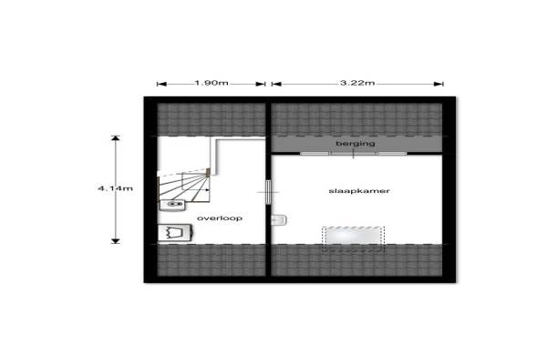
Het adres van deze woning uit 1983 is Minaret 19 te Middelburg. Het pand heeft een oppervlakte van 117m² en een perceeloppervlakte van 135m² en heeft 5 kamers kamers waarvan 4 slaapkamers. De geschatte waarde van deze woning is € 209.000.

Bekijk alle woningen in Middelburg-Zuid

Gegevens van Eengezinswoning, tussenwoning

Bouwjaar
1983
Geschatte waarde
€ 209.000
Oppervlakte
117 m2
Inhoud
325 m3
Aantal kamers
5 kamers
Slaapkamers
4
Badkamers
1 badkamer en 1 apart toilet
Soort bouw
Bestaande bouw
Eigendomssituatie
Volle eigendom
Ligging
Aan rustige weg en in woonwijk
Tuin
Achtertuin en voortuin
Achtertuin
66 m² (11m diep en 6m breed)

Voorzieningen in de buurt

Boodschappen0,6 km
Grote supermarkt0,6 km
Cafetaria0,6 km
Restaurant1,3 km
Huisarts0,6 km
Ziekenhuis1,3 km
Kinderdagverblijf0,6 km
BSO0,6 km
Alle voorzieningen in Middelburg-Zuid

Binnenkijken bij Minaret 19 te Middelburg

Meer meldingen in deze omgeving

Binnenkijken bij
Zondag 25-1-2026
Amnestylaan 29, 4336LA Middelburg

Binnenkijken bij
Zondag 25-1-2026
Weerhaan 36, 4336KS Middelburg

Binnenkijken bij
Zondag 25-1-2026
Johan van Reigersbergstraat 201, 4336XH Middelburg

Binnenkijken bij
Vrijdag 23-1-2026
Wachttoren 17, 4336KL Middelburg

112 melding
Donderdag 22-1-2026 om 18:43
Johan Wilhem Thibautstraat, Middelburg

112 melding
Donderdag 22-1-2026 om 02:27
Huybregt de Hasestraat, 4336AJ Middelburg

Nieuw bedrijf
Januari 2026
Torentrans 58, 4336JS Middelburg

Nieuw bedrijf
Januari 2026
Stadhouderslaan 57, 4336GZ Middelburg

Direct een e-mail ontvangen bij nieuwe meldingen in deze regio?

Meld je dan GRATIS aan voor de Oozo Alert service voor Middelburg-Zuid

Instellen

Meer nieuws in Middelburg-Zuid

Weten hoe eenvoudig het is om af te vallen? Zonder pillen en smeersels en zonder je in het zweet te werken!
Kijk op eenvoudig-afvallen.nl

© 2012 - 2026 OOZO.nl - info@oozo.nl - Gegevens verwijderen? | Disclaimer | Privacy statement