Woning Adriaen Lauwereyszstraat 143 Middelburg

Adriaen Lauwereyszstraat 143, 4335EK Middelburg

Ontvang updates voor Stromenwijk/'t Zand

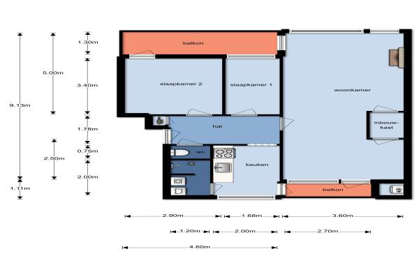
Het adres van deze woning uit 1965 is Adriaen Lauwereyszstraat 143 te Middelburg. Het pand heeft een oppervlakte van 70m² en heeft 3 kamers kamers waarvan 2 slaapkamers. De geschatte waarde van deze woning is € 117.500.

Bekijk alle woningen in Stromenwijk/'t Zand

Gegevens van Portiekflat (appartement)

Bouwjaar
1965
Geschatte waarde
€ 117.500
Oppervlakte
70 m2
Inhoud
180 m3
Aantal kamers
3 kamers
Slaapkamers
2
Badkamers
1 badkamer en 1 apart toilet
Soort bouw
Bestaande bouw
Eigendomssituatie
Volle eigendom
Ligging
Aan rustige weg, in woonwijk, vrij uitzicht en beschutte ligging

Voorzieningen in de buurt

Boodschappen0,5 km
Grote supermarkt0,6 km
Cafetaria0,4 km
Restaurant0,6 km
Huisarts1,3 km
Ziekenhuis1,3 km
Kinderdagverblijf0,7 km
BSO0,6 km
Alle voorzieningen in Stromenwijk/'t Zand

Binnenkijken bij Adriaen Lauwereyszstraat 143 te Middelburg

Meer meldingen in deze omgeving

Nieuw bedrijf
Maart 2026
Lingestraat 14, 4335NZ Middelburg

Nieuw bedrijf
Maart 2026
Burgemeester Dregmansstraat 3, 4335BG Middelburg

112 melding
Dinsdag 17-3-2026 om 17:31
Haringvlietstraat, Middelburg

112 melding
Dinsdag 17-3-2026 om 12:40
Poelendaelesingel, 4335JA Middelburg

Binnenkijken bij
Zondag 15-3-2026
Grevelingenstraat 31, 4335XC Middelburg

Nieuw bedrijf
Maart 2026
Oosterscheldestraat 46, 4335PK Middelburg

Nieuw bedrijf
Maart 2026
Oude Koudekerkseweg 99, 4335CC Middelburg

112 melding
Woensdag 11-3-2026 om 11:16
Westerscheldeplein, 4335NL Middelburg

Direct een e-mail ontvangen bij nieuwe meldingen in deze regio?

Meld je dan GRATIS aan voor de Oozo Alert service voor Stromenwijk/'t Zand

Instellen

Meer nieuws in Stromenwijk/'t Zand

Weten hoe eenvoudig het is om af te vallen? Zonder pillen en smeersels en zonder je in het zweet te werken!
Kijk op eenvoudig-afvallen.nl

© 2012 - 2026 OOZO.nl - info@oozo.nl - Gegevens verwijderen? | Disclaimer | Privacy statement