Woning Adelaarstraat 70 Middelburg

Adelaarstraat 70, 4335CM Middelburg

Ontvang updates voor Stromenwijk/'t Zand

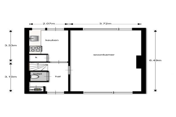
Het adres van deze woning uit 1961 is Adelaarstraat 70 te Middelburg. Het pand heeft een oppervlakte van 74m² en een perceeloppervlakte van 143m² en heeft 5 kamers kamers waarvan 4 slaapkamers. De geschatte waarde van deze woning is € 145.000.

Bekijk alle woningen in Stromenwijk/'t Zand

Gegevens van Eengezinswoning, tussenwoning

Bouwjaar
1961
Geschatte waarde
€ 145.000
Oppervlakte
74 m2
Inhoud
265 m3
Aantal kamers
5 kamers
Slaapkamers
4
Badkamers
1 badkamer en 1 apart toilet
Soort bouw
Bestaande bouw
Eigendomssituatie
Volle eigendom
Ligging
Aan rustige weg en in woonwijk
Tuin
Achtertuin en voortuin
Achtertuin
63 m² (10,5m diep en 6m breed)

Voorzieningen in de buurt

Boodschappen0,5 km
Grote supermarkt0,6 km
Cafetaria0,4 km
Restaurant0,6 km
Huisarts1,3 km
Ziekenhuis1,3 km
Kinderdagverblijf0,7 km
BSO0,6 km
Alle voorzieningen in Stromenwijk/'t Zand

Binnenkijken bij Adelaarstraat 70 te Middelburg

Meer meldingen in deze omgeving

Binnenkijken bij
Vrijdag 14-11-2025
Oude Koudekerkseweg 95, 4335CC Middelburg

Nieuw bedrijf
November 2025
Westerscheldeplein 10, 4335NL Middelburg

Binnenkijken bij
Dinsdag 11-11-2025
Lingestraat 31, 4335NZ Middelburg

Binnenkijken bij
Dinsdag 11-11-2025
De Ruyterstraat 76, 4335GN Middelburg

Nieuw bedrijf
November 2025
Volkerakstraat 9, 4335VB Middelburg

Nieuw bedrijf
November 2025
Waalstraat 71, 4335KL Middelburg

Nieuw bedrijf
November 2025
Nieuwe Vlissingseweg 368, 4335JL Middelburg

Binnenkijken bij
Donderdag 30-10-2025
Volkerakstraat 13, 4335VB Middelburg

Direct een e-mail ontvangen bij nieuwe meldingen in deze regio?

Meld je dan GRATIS aan voor de Oozo Alert service voor Stromenwijk/'t Zand

Instellen

Meer nieuws in Stromenwijk/'t Zand

Weten hoe eenvoudig het is om af te vallen? Zonder pillen en smeersels en zonder je in het zweet te werken!
Kijk op eenvoudig-afvallen.nl

© 2012 - 2025 OOZO.nl - info@oozo.nl - Gegevens verwijderen? | Disclaimer | Privacy statement