Woning Klatering 10 Beilen

Klatering 10, 9411XE Beilen

Ontvang updates voor Verspreide huizen Beilen

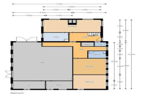
Het adres van deze woning uit 1957 is Klatering 10 te Beilen. Het pand heeft een oppervlakte van 135m² en een perceeloppervlakte van 14600m² en heeft 5 kamers kamers waarvan 4 slaapkamers. De geschatte waarde van deze woning is € 389.000.

Bekijk alle woningen in Verspreide huizen Beilen

Gegevens van Woonboerderij, vrijstaande woning

Bouwjaar
1957
Geschatte waarde
€ 389.000
Oppervlakte
135 m2
Inhoud
950 m3
Aantal kamers
5 kamers
Slaapkamers
4
Badkamers
1 badkamer en 1 apart toilet
Soort bouw
Bestaande bouw
Eigendomssituatie
Volle eigendom
Ligging
Aan rustige weg, vrij uitzicht, beschutte ligging, buiten bebouwde kom, in bosrijke omgeving en landelijk gelegen
Tuin
Tuin rondom

Voorzieningen in de buurt

Boodschappen2,5 km
Grote supermarkt2,7 km
Cafetaria2,5 km
Restaurant2,3 km
Huisarts2,9 km
Ziekenhuis16,0 km
Kinderdagverblijf2,5 km
BSO2,5 km
Alle voorzieningen in Verspreide huizen Beilen

Binnenkijken bij Klatering 10 te Beilen

Meer meldingen in deze omgeving

Nieuw bedrijf
November 2025
Vogelwikke 3, 9413DL Beilen

Binnenkijken bij
Vrijdag 14-11-2025
Biggekruid 12, 9413DA Beilen

Nieuw bedrijf
November 2025
Vogelwikke 3, 9413DL Beilen

Nieuw bedrijf
November 2025
Vogelwikke 3, 9413DL Beilen

Nieuw bedrijf
Oktober 2025
Bathoorn 3, 9411SE Beilen

Nieuw bedrijf
Oktober 2025
Holthe 37B, 9411TN Beilen

Onroerend goed
Zondag 19-10-2025
Lieving, 9411TG Beilen

Binnenkijken bij
Zondag 19-10-2025
Walstro 20, 9413DE Beilen

Direct een e-mail ontvangen bij nieuwe meldingen in deze regio?

Meld je dan GRATIS aan voor de Oozo Alert service voor Verspreide huizen Beilen

Instellen

Meer nieuws in Verspreide huizen Beilen

Weten hoe eenvoudig het is om af te vallen? Zonder pillen en smeersels en zonder je in het zweet te werken!
Kijk op eenvoudig-afvallen.nl

© 2012 - 2025 OOZO.nl - info@oozo.nl - Gegevens verwijderen? | Disclaimer | Privacy statement