Woning Leeuwerikstraat 54 Didam

Leeuwerikstraat 54, 6942CN Didam

Ontvang updates voor Didam-Zuid

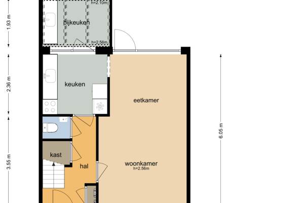
Het adres van deze woning uit 1966 is Leeuwerikstraat 54 te Didam. Het pand heeft een oppervlakte van 75m² en een perceeloppervlakte van 143m² en heeft 4 kamers kamers waarvan 3 slaapkamers. De geschatte waarde van deze woning is € 199.000.

Bekijk alle woningen in Didam-Zuid

Gegevens van Eengezinswoning, tussenwoning

Bouwjaar
1966
Geschatte waarde
€ 199.000
Oppervlakte
75 m2
Inhoud
309 m3
Aantal kamers
4 kamers
Slaapkamers
3
Badkamers
1 badkamer en 1 apart toilet
Soort bouw
Bestaande bouw
Eigendomssituatie
Volle eigendom
Ligging
Aan rustige weg en in woonwijk
Tuin
Achtertuin en voortuin
Achtertuin
55 m² (9,9 meter diep en 5,6 meter breed)

Voorzieningen in de buurt

Boodschappen0,5 km
Grote supermarkt0,6 km
Cafetaria0,6 km
Restaurant0,5 km
Huisarts0,6 km
Ziekenhuis4,9 km
Kinderdagverblijf0,8 km
BSO0,9 km
Alle voorzieningen in Didam-Zuid

Binnenkijken bij Leeuwerikstraat 54 te Didam

Meer meldingen in deze omgeving

112 melding
Donderdag 30-10-2025 om 17:48
Bergvredestraat, Didam

112 melding
Donderdag 30-10-2025 om 17:48
Bergvredestraat, Didam

Nieuw bedrijf
Oktober 2025
Hoofdstraat 41, 6942AS Didam

Binnenkijken bij
Woensdag 29-10-2025
Willibrordusweg 60, 6942EP Didam

Binnenkijken bij
Zondag 19-10-2025
van den Berghweg 8, 6942ZK Didam

Nieuw bedrijf
Oktober 2025
Spoorstraat 26, 6942ED Didam

112 melding
Woensdag 15-10-2025 om 11:22
Lieve Vrouweplein, 6942BP Didam

112 melding
Maandag 13-10-2025 om 14:26
Sperwerstraat, Didam

Direct een e-mail ontvangen bij nieuwe meldingen in deze regio?

Meld je dan GRATIS aan voor de Oozo Alert service voor Didam-Zuid

Instellen

Meer nieuws in Didam-Zuid

Weten hoe eenvoudig het is om af te vallen? Zonder pillen en smeersels en zonder je in het zweet te werken!
Kijk op eenvoudig-afvallen.nl

© 2012 - 2025 OOZO.nl - info@oozo.nl - Gegevens verwijderen? | Disclaimer | Privacy statement