Woning Stationsstraat 6584 Molenhoek

Stationsstraat 6584, 6584AR Molenhoek

Ontvang updates voor Molenhoek

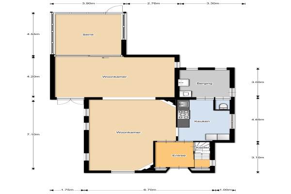
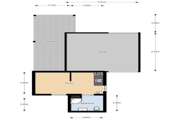
Het adres van deze woning uit 1954 is Stationsstraat 6584 te Molenhoek. Het pand heeft een oppervlakte van 143m² en een perceeloppervlakte van 1280m² en heeft 6 kamers kamers waarvan 3 slaapkamers. De geschatte waarde van deze woning is € 550.000.

Bekijk alle woningen in Molenhoek

Gegevens van Eengezinswoning, vrijstaande woning

Bouwjaar
1954
Geschatte waarde
€ 550.000
Oppervlakte
143 m2
Inhoud
450 m3
Aantal kamers
6 kamers
Slaapkamers
3
Badkamers
1 badkamer en 1 apart toilet
Soort bouw
Bestaande bouw
Eigendomssituatie
Volle eigendom
Ligging
Aan rustige weg en beschutte ligging
Tuin
Tuin rondom

Voorzieningen in de buurt

Boodschappen0,5 km
Grote supermarkt0,6 km
Cafetaria0,6 km
Restaurant0,5 km
Huisarts0,6 km
Ziekenhuis7,3 km
Kinderdagverblijf0,6 km
BSO0,6 km
Alle voorzieningen in Molenhoek

Binnenkijken bij Stationsstraat 6584 te Molenhoek

Meer meldingen in deze omgeving

112 melding
Zaterdag 21-2-2026 om 18:51
Beukenlaan, Molenhoek

112 melding
Zaterdag 21-2-2026 om 18:47
Beukenlaan, Molenhoek

Binnenkijken bij
Woensdag 11-2-2026
Mozartstraat 5, 6584BA Molenhoek

Binnenkijken bij
Dinsdag 10-2-2026
Eikenlaan 59, 6584BV Molenhoek

Binnenkijken bij
Zaterdag 7-2-2026
Berkenhof 4, 6584BM Molenhoek

Binnenkijken bij
Zondag 1-2-2026
Oude Bovensteweg 6, 6584CK Molenhoek

Binnenkijken bij
Zondag 1-2-2026
Keizershof 58, 6584CH Molenhoek

112 melding
Zaterdag 31-1-2026 om 17:33
Lindenlaan, Molenhoek

Direct een e-mail ontvangen bij nieuwe meldingen in deze regio?

Meld je dan GRATIS aan voor de Oozo Alert service voor Molenhoek

Instellen

Meer nieuws in Molenhoek

Weten hoe eenvoudig het is om af te vallen? Zonder pillen en smeersels en zonder je in het zweet te werken!
Kijk op eenvoudig-afvallen.nl

© 2012 - 2026 OOZO.nl - info@oozo.nl - Gegevens verwijderen? | Disclaimer | Privacy statement