Woning Eikenlaan 29 Molenhoek

Eikenlaan 29, 6584BT Molenhoek

Ontvang updates voor Molenhoek

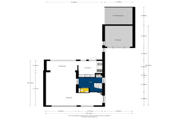
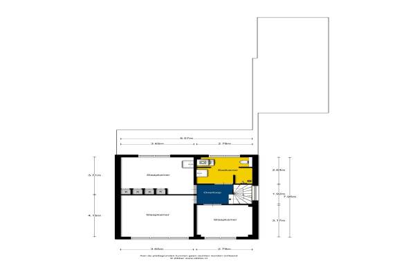
Het adres van deze woning uit 1970 is Eikenlaan 29 te Molenhoek. Het pand heeft een oppervlakte van 145m² en een perceeloppervlakte van 261m² en heeft 5 kamers kamers waarvan 4 slaapkamers. De geschatte waarde van deze woning is € 345.000.

Bekijk alle woningen in Molenhoek

Gegevens van Eengezinswoning, 2-onder-1-kapwoning

Bouwjaar
1970
Geschatte waarde
€ 345.000
Oppervlakte
145 m2
Inhoud
509 m3
Aantal kamers
5 kamers
Slaapkamers
4
Badkamers
1 badkamer en 1 apart toilet
Soort bouw
Bestaande bouw
Eigendomssituatie
Volle eigendom
Ligging
Aan rustige weg, in centrum, in woonwijk en beschutte ligging
Tuin
Achtertuin, voortuin en zijtuin
Achtertuin
120 m² (12m diep en 10m breed)

Voorzieningen in de buurt

Boodschappen0,5 km
Grote supermarkt0,6 km
Cafetaria0,6 km
Restaurant0,5 km
Huisarts0,6 km
Ziekenhuis7,3 km
Kinderdagverblijf0,6 km
BSO0,6 km
Alle voorzieningen in Molenhoek

Binnenkijken bij Eikenlaan 29 te Molenhoek

Meer meldingen in deze omgeving

Binnenkijken bij
Vrijdag 21-11-2025
Dominicanessenstraat 7, 6584GL Molenhoek

Binnenkijken bij
Vrijdag 21-11-2025
Passionistenstraat 26, 6584GK Molenhoek

Binnenkijken bij
Vrijdag 14-11-2025
Eikenlaan 27, 6584BT Molenhoek

Nieuw bedrijf
November 2025
De Bongerd 56, 6584DJ Molenhoek

Nieuw bedrijf
November 2025
De Sterreschans 38, 6584HD Molenhoek

Nieuw bedrijf
November 2025
Stationsstraat 57, 6584AT Molenhoek

Nieuw bedrijf
Oktober 2025
Meidoornhof 12, 6584BS Molenhoek

Binnenkijken bij
Woensdag 29-10-2025
Radijs 10, 6584JB Molenhoek

Direct een e-mail ontvangen bij nieuwe meldingen in deze regio?

Meld je dan GRATIS aan voor de Oozo Alert service voor Molenhoek

Instellen

Meer nieuws in Molenhoek

Weten hoe eenvoudig het is om af te vallen? Zonder pillen en smeersels en zonder je in het zweet te werken!
Kijk op eenvoudig-afvallen.nl

© 2012 - 2025 OOZO.nl - info@oozo.nl - Gegevens verwijderen? | Disclaimer | Privacy statement