Woning Bruningsstraat 41 Nieuwveen

Bruningsstraat 41, 2441AS Nieuwveen

Ontvang updates voor Schoterveld

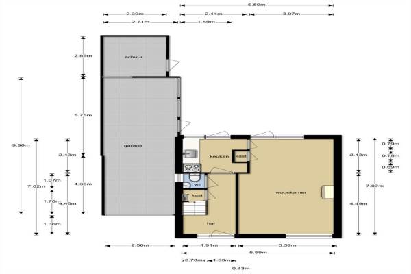
Het adres van deze woning uit 1960 is Bruningsstraat 41 te Nieuwveen. Het pand heeft een oppervlakte van 80m² en een perceeloppervlakte van 234m² en heeft 4 kamers kamers waarvan 3 slaapkamers. De geschatte waarde van deze woning is € 259.000.

Bekijk alle woningen in Schoterveld

Gegevens van Eengezinswoning, hoekwoning

Bouwjaar
1960
Geschatte waarde
€ 259.000
Oppervlakte
80 m2
Inhoud
450 m3
Aantal kamers
4 kamers
Slaapkamers
3
Soort bouw
Bestaande bouw
Eigendomssituatie
Volle eigendom
Ligging
Vrij uitzicht, in woonwijk en aan rustige weg
Tuin
Achtertuin en voortuin
Achtertuin
97 m² (13m diep en 8m breed)

Voorzieningen in de buurt

Boodschappen0,7 km
Grote supermarkt0,7 km
Cafetaria0,7 km
Restaurant0,7 km
Huisarts0,7 km
Ziekenhuis8,6 km
Kinderdagverblijf0,6 km
BSO0,5 km
Alle voorzieningen in Schoterveld

Binnenkijken bij Bruningsstraat 41 te Nieuwveen

Meer meldingen in deze omgeving

Binnenkijken bij
Dinsdag 11-11-2025
Schout Clantstraat 56, 2441AR Nieuwveen

112 melding
Dinsdag 4-11-2025 om 08:26
Teylersplein, 2441LE Nieuwveen

Binnenkijken bij
Woensdag 29-10-2025
Teylersplein 2B, 2441LE Nieuwveen

Binnenkijken bij
Woensdag 29-10-2025
Teylersplein 2C6, 2441LE Nieuwveen

Binnenkijken bij
Zaterdag 11-10-2025
Meeuwenveld 10, 2441BE Nieuwveen

Nieuw bedrijf
Oktober 2025
Teylersplein 28, 2441LE Nieuwveen

Binnenkijken bij
Vrijdag 26-9-2025
Teylersplein 2B4, 2441LE Nieuwveen

112 melding
Dinsdag 23-9-2025 om 10:34
Teylersplein, 2441LE Nieuwveen

Direct een e-mail ontvangen bij nieuwe meldingen in deze regio?

Meld je dan GRATIS aan voor de Oozo Alert service voor Schoterveld

Instellen

Meer nieuws in Schoterveld

Weten hoe eenvoudig het is om af te vallen? Zonder pillen en smeersels en zonder je in het zweet te werken!
Kijk op eenvoudig-afvallen.nl

© 2012 - 2025 OOZO.nl - info@oozo.nl - Gegevens verwijderen? | Disclaimer | Privacy statement