Woning Blokland 30 Nieuwveen

Blokland 30, 2441GG Nieuwveen

Ontvang updates voor Vrouwenakker

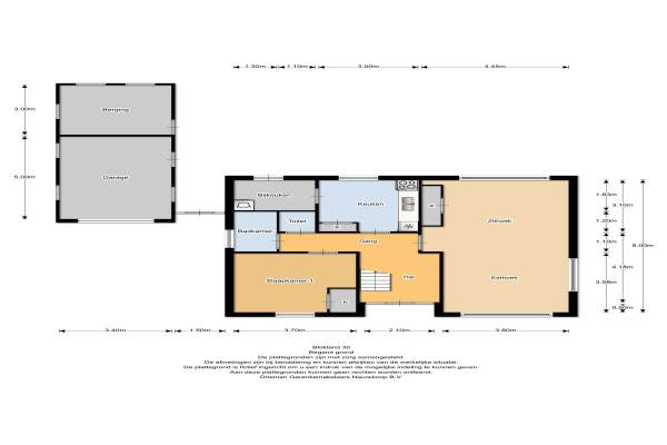
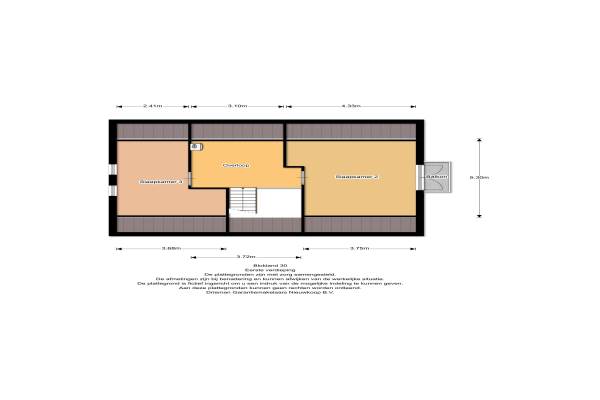
Het adres van deze woning uit 1976 is Blokland 30 te Nieuwveen. Het pand heeft een oppervlakte van 138m² en een perceeloppervlakte van 2145m² en heeft 4 kamers kamers waarvan 3 slaapkamers. De geschatte waarde van deze woning is € 409.000.

Bekijk alle woningen in Vrouwenakker

Gegevens van Bungalow, vrijstaande woning

Bouwjaar
1976
Geschatte waarde
€ 409.000
Oppervlakte
138 m2
Inhoud
450 m3
Aantal kamers
4 kamers
Slaapkamers
3
Badkamers
1 badkamer en 1 apart toilet
Soort bouw
Bestaande bouw
Eigendomssituatie
Volle eigendom
Ligging
Vrij uitzicht, open ligging, buiten bebouwde kom en landelijk gelegen
Tuin
Achtertuin en voortuin
Achtertuin
385 m² (11m diep en 35m breed)

Voorzieningen in de buurt

Boodschappen2,1 km
Grote supermarkt2,1 km
Cafetaria2,0 km
Restaurant2,1 km
Huisarts4,0 km
Ziekenhuis4,5 km
Kinderdagverblijf1,1 km
BSO2,6 km
Alle voorzieningen in Vrouwenakker

Binnenkijken bij Blokland 30 te Nieuwveen

Meer meldingen in deze omgeving

112 melding
Dinsdag 11-11-2025 om 06:48
Ruigekade, Vrouwenakker

Binnenlands nieuws
Donderdag 2-10-2025
Vrouwenakker

Binnenkijken bij
Vrijdag 19-9-2025
Blokland 43, 2441GE Nieuwveen

Nieuw bedrijf
Juli 2025
Nieuwveens Jaagpad 101, 2441GC Nieuwveen

112 melding
Donderdag 5-6-2025 om 07:33
Ruigekade, Vrouwenakker

Binnenlands nieuws
Woensdag 4-6-2025
Vrouwenakker

Onroerend goed
Vrijdag 30-5-2025
Blokland 52, 2441GG Nieuwveen

Binnenkijken bij
Dinsdag 13-5-2025
Nieuwveens Jaagpad 120, 2441GD Nieuwveen

Direct een e-mail ontvangen bij nieuwe meldingen in deze regio?

Meld je dan GRATIS aan voor de Oozo Alert service voor Vrouwenakker

Instellen

Meer nieuws in Vrouwenakker

Weten hoe eenvoudig het is om af te vallen? Zonder pillen en smeersels en zonder je in het zweet te werken!
Kijk op eenvoudig-afvallen.nl

© 2012 - 2025 OOZO.nl - info@oozo.nl - Gegevens verwijderen? | Disclaimer | Privacy statement