Woning Korteraarseweg 140 Ter Aar

Korteraarseweg 140, 2461GP Ter Aar

Ontvang updates voor Korteraar

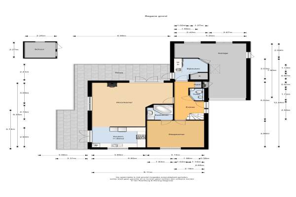
Het adres van deze woning uit 2005 is Korteraarseweg 140 te Ter Aar. Het pand heeft een oppervlakte van 168m² en een perceeloppervlakte van 340m² en heeft 6 kamers kamers waarvan 3 slaapkamers. De geschatte waarde van deze woning is € 525.000.

Bekijk alle woningen in Korteraar

Gegevens van Eengezinswoning, vrijstaande woning

Bouwjaar
2005
Geschatte waarde
€ 525.000
Oppervlakte
168 m2
Inhoud
702 m3
Aantal kamers
6 kamers
Slaapkamers
3
Badkamers
2 badkamers en 2 aparte toiletten
Soort bouw
Bestaande bouw
Eigendomssituatie
Volle eigendom
Ligging
Vrij uitzicht en buiten bebouwde kom
Tuin
Tuin rondom

Voorzieningen in de buurt

Boodschappen0,7 km
Grote supermarkt2,1 km
Cafetaria1,8 km
Restaurant1,7 km
Huisarts2,2 km
Ziekenhuis8,0 km
Kinderdagverblijf2,3 km
BSO2,3 km
Alle voorzieningen in Korteraar

Binnenkijken bij Korteraarseweg 140 te Ter Aar

Meer meldingen in deze omgeving

Binnenkijken bij
Zondag 29-3-2026
Korteraarseweg 67, 2461GJ Ter Aar

Binnenkijken bij
Maandag 23-3-2026
Korteraarseweg 20, 2461GL Ter Aar

112 melding
Zondag 22-3-2026 om 08:43
Korteraarseweg, Ter Aar

112 melding
Vrijdag 20-3-2026 om 19:35
Korteraarseweg, Ter Aar

Binnenkijken bij
Woensdag 18-3-2026
Korteraarseweg 127B, 2461GS Ter Aar

112 melding
Donderdag 5-3-2026 om 16:26
Korteraarseweg, Ter Aar

Binnenkijken bij
Woensdag 4-3-2026
Hoekse Aar 102, 2461EV Ter Aar

Onroerend goed
Vrijdag 27-2-2026
Korteraarseweg 93-A, 2461GJ Ter Aar

Direct een e-mail ontvangen bij nieuwe meldingen in deze regio?

Meld je dan GRATIS aan voor de Oozo Alert service voor Korteraar

Instellen

Meer nieuws in Korteraar

Weten hoe eenvoudig het is om af te vallen? Zonder pillen en smeersels en zonder je in het zweet te werken!
Kijk op eenvoudig-afvallen.nl

© 2012 - 2026 OOZO.nl - info@oozo.nl - Gegevens verwijderen? | Disclaimer | Privacy statement