Woning Simon van Capelweg 191 Noorden

Simon van Capelweg 191, 2431AE Noorden

Ontvang updates voor Noorden (gedeeltelijk)

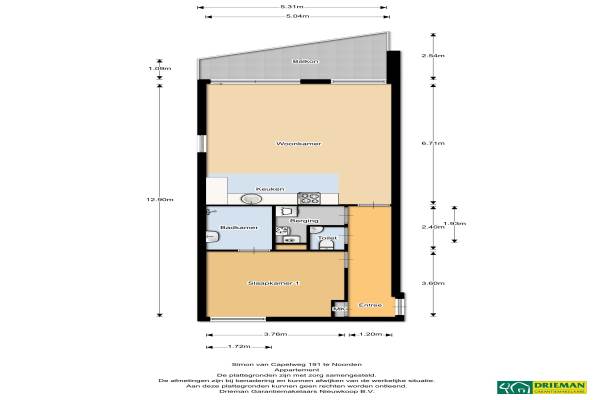
Het adres van deze woning uit 2012 is Simon van Capelweg 191 te Noorden. Het pand heeft een oppervlakte van 66m² en heeft 2 kamers kamers waarvan 1 slaapkamers. De geschatte waarde van deze woning is € 197.500.

Bekijk alle woningen in Noorden (gedeeltelijk)

Gegevens van Bovenwoning (appartement)

Bouwjaar
2012
Geschatte waarde
€ 197.500
Oppervlakte
66 m2
Inhoud
200 m3
Aantal kamers
2 kamers
Slaapkamers
1
Badkamers
1 badkamer en 1 apart toilet
Soort bouw
Bestaande bouw
Eigendomssituatie
Volle eigendom
Ligging
Aan water, in centrum, in woonwijk en vrij uitzicht
Tuin
Zonneterras

Voorzieningen in de buurt

Boodschappen0,6 km
Grote supermarkt0,7 km
Cafetaria0,7 km
Restaurant0,7 km
Huisarts0,8 km
Ziekenhuis11,6 km
Kinderdagverblijf0,9 km
BSO0,9 km
Alle voorzieningen in Noorden (gedeeltelijk)

Binnenkijken bij Simon van Capelweg 191 te Noorden

Meer meldingen in deze omgeving

Binnenkijken bij
Dinsdag 11-11-2025
Simon van Capelweg 31A, 2431AC Noorden

Binnenkijken bij
Vrijdag 26-9-2025
Simon van Capelweg 12, 2431AG Noorden

112 melding
Zaterdag 13-9-2025 om 19:26
Simon van Capelweg, Noorden

Nieuw bedrijf
September 2025
Simon van Capelweg 80, 2431AH Noorden

112 melding
Zaterdag 9-8-2025 om 13:50
Hogedijk, 2431AA Noorden

112 melding
Zaterdag 9-8-2025 om 13:44
Hogedijk, 2431AA Noorden

Nieuw bedrijf
Juli 2025
Noordsedorpsweg 12B, 2431AT NOORDEN

Nieuw bedrijf
Juli 2025
Simon van Capelweg 31I, 2431AC Noorden

Direct een e-mail ontvangen bij nieuwe meldingen in deze regio?

Meld je dan GRATIS aan voor de Oozo Alert service voor Noorden (gedeeltelijk)

Instellen

Meer nieuws in Noorden (gedeeltelijk)

Weten hoe eenvoudig het is om af te vallen? Zonder pillen en smeersels en zonder je in het zweet te werken!
Kijk op eenvoudig-afvallen.nl

© 2012 - 2025 OOZO.nl - info@oozo.nl - Gegevens verwijderen? | Disclaimer | Privacy statement