Woning Doorniksland 12 Hoevelaken

Doorniksland 12, 3871RS Hoevelaken

Ontvang updates voor Hoevelaken-Hogenbrink

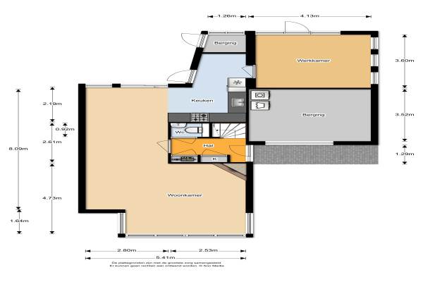
Het adres van deze woning uit 1993 is Doorniksland 12 te Hoevelaken. Het pand heeft een oppervlakte van 147m² en een perceeloppervlakte van 285m² en heeft 6 kamers kamers waarvan 4 slaapkamers. De geschatte waarde van deze woning is € 475.000.

Bekijk alle woningen in Hoevelaken-Hogenbrink

Gegevens van Eengezinswoning, 2-onder-1-kapwoning

Bouwjaar
1993
Geschatte waarde
€ 475.000
Oppervlakte
147 m2
Inhoud
575 m3
Aantal kamers
6 kamers
Slaapkamers
4
Badkamers
1 badkamer en 1 apart toilet
Soort bouw
Bestaande bouw
Eigendomssituatie
Volle eigendom
Ligging
Aan rustige weg en in woonwijk
Tuin
Achtertuin en voortuin
Achtertuin
66 m² (6m diep en 11m breed)

Voorzieningen in de buurt

Boodschappen0,9 km
Grote supermarkt0,8 km
Cafetaria0,9 km
Restaurant0,9 km
Huisarts0,7 km
Ziekenhuis5,0 km
Kinderdagverblijf0,7 km
BSO0,7 km
Alle voorzieningen in Hoevelaken-Hogenbrink

Binnenkijken bij Doorniksland 12 te Hoevelaken

Meer meldingen in deze omgeving

Binnenkijken bij
Dinsdag 25-11-2025
Doorniksland 11, 3871RR Hoevelaken

Onroerend goed
Dinsdag 18-11-2025
Hogebrinkerweg 31, 3871KM Hoevelaken

Onroerend goed
Vrijdag 14-11-2025
Hogebrinkerweg 18- 033, 3871KN Hoevelaken

Nieuw bedrijf
November 2025
Veenwal 6a, 3871KG Hoevelaken

Nieuw bedrijf
November 2025
Veenwal 6a, 3871KG Hoevelaken

Nieuw bedrijf
November 2025
Hogebrinkerweg 15A, 3871KM Hoevelaken

Nieuw bedrijf
Oktober 2025
't Viertel 12, 3871RM Hoevelaken

Binnenkijken bij
Zondag 19-10-2025
Veenlanden 4, 3871PR Hoevelaken

Direct een e-mail ontvangen bij nieuwe meldingen in deze regio?

Meld je dan GRATIS aan voor de Oozo Alert service voor Hoevelaken-Hogenbrink

Instellen

Meer nieuws in Hoevelaken-Hogenbrink

Weten hoe eenvoudig het is om af te vallen? Zonder pillen en smeersels en zonder je in het zweet te werken!
Kijk op eenvoudig-afvallen.nl

© 2012 - 2025 OOZO.nl - info@oozo.nl - Gegevens verwijderen? | Disclaimer | Privacy statement