Woning Kantemarsweg 5 Hoevelaken

Kantemarsweg 5, 3871AP Hoevelaken

Ontvang updates voor Hoevelaken-Kleinhoven

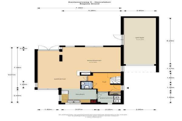
Het adres van deze woning uit 1983 is Kantemarsweg 5 te Hoevelaken. Het pand heeft een oppervlakte van 137m² en een perceeloppervlakte van 468m² en heeft 5 kamers kamers. De geschatte waarde van deze woning is € 419.000.

Bekijk alle woningen in Hoevelaken-Kleinhoven

Gegevens van Villa, geschakelde woning

Bouwjaar
1983
Geschatte waarde
€ 419.000
Oppervlakte
137 m2
Inhoud
564 m3
Aantal kamers
5 kamers
Badkamers
1 badkamer en 1 apart toilet
Soort bouw
Bestaande bouw
Eigendomssituatie
Volle eigendom
Ligging
Beschutte ligging, in centrum en vrij uitzicht
Tuin
Achtertuin, voortuin en zijtuin
Achtertuin
215 m² (16,5m diep en 13m breed)

Voorzieningen in de buurt

Boodschappen0,7 km
Grote supermarkt0,5 km
Cafetaria0,6 km
Restaurant0,5 km
Huisarts0,5 km
Ziekenhuis4,7 km
Kinderdagverblijf0,6 km
BSO0,5 km
Alle voorzieningen in Hoevelaken-Kleinhoven

Binnenkijken bij Kantemarsweg 5 te Hoevelaken

Meer meldingen in deze omgeving

Nieuw bedrijf
Oktober 2025
Weldammerlaan 7, 3871KH Hoevelaken

Nieuw bedrijf
Oktober 2025
Roggeakker 9, 3871NT Hoevelaken

Nieuw bedrijf
Oktober 2025
Kantemarsweg 20, 3871AP Hoevelaken

Binnenkijken bij
Woensdag 1-10-2025
Kantemarsweg 3, 3871AP Hoevelaken

112 melding
Woensdag 24-9-2025 om 10:13
De Brink, 3871AM Hoevelaken

Binnenkijken bij
Maandag 22-9-2025
Gerstkamp 8, 3871PE Hoevelaken

Binnenkijken bij
Maandag 22-9-2025
Park Weldam 19, 3871BN Hoevelaken

Binnenkijken bij
Vrijdag 19-9-2025
Huijgenserf 8, 3871PM Hoevelaken

Direct een e-mail ontvangen bij nieuwe meldingen in deze regio?

Meld je dan GRATIS aan voor de Oozo Alert service voor Hoevelaken-Kleinhoven

Instellen

Meer nieuws in Hoevelaken-Kleinhoven

Weten hoe eenvoudig het is om af te vallen? Zonder pillen en smeersels en zonder je in het zweet te werken!
Kijk op eenvoudig-afvallen.nl

© 2012 - 2025 OOZO.nl - info@oozo.nl - Gegevens verwijderen? | Disclaimer | Privacy statement