Woning Parklaan 4 Hoevelaken

Parklaan 4, 3871EH Hoevelaken

Ontvang updates voor Hoevelaken-Stoutenburgerlaan-Oost

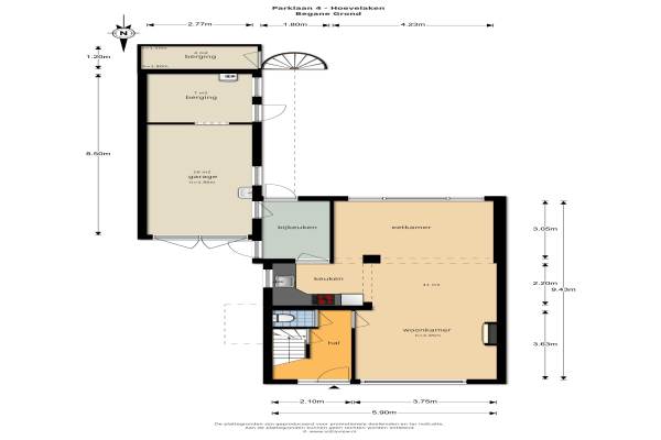
Het adres van deze woning uit 1964 is Parklaan 4 te Hoevelaken. Het pand heeft een oppervlakte van 113m² en een perceeloppervlakte van 202m² en heeft 6 kamers kamers waarvan 4 slaapkamers. De geschatte waarde van deze woning is € 336.000.

Bekijk alle woningen in Hoevelaken-Stoutenburgerlaan-Oost

Gegevens van Eengezinswoning, 2-onder-1-kapwoning

Bouwjaar
1964
Geschatte waarde
€ 336.000
Oppervlakte
113 m2
Inhoud
532 m3
Aantal kamers
6 kamers
Slaapkamers
4
Badkamers
1 badkamer en 1 apart toilet
Soort bouw
Bestaande bouw
Eigendomssituatie
Volle eigendom
Ligging
Aan rustige weg, in centrum en in woonwijk
Tuin
Achtertuin, voortuin en zijtuin
Achtertuin
64 m² (8m diep en 8m breed)

Voorzieningen in de buurt

Boodschappen0,7 km
Grote supermarkt0,8 km
Cafetaria0,6 km
Restaurant0,6 km
Huisarts0,5 km
Ziekenhuis5,7 km
Kinderdagverblijf0,2 km
BSO0,2 km
Alle voorzieningen in Hoevelaken-Stoutenburgerlaan-Oost

Binnenkijken bij Parklaan 4 te Hoevelaken

Meer meldingen in deze omgeving

Binnenkijken bij
Dinsdag 5-5-2026
Parklaan 6, 3871EH Hoevelaken

Binnenkijken bij
Dinsdag 5-5-2026
van Aalstplein 33, 3871EA Hoevelaken

Binnenkijken bij
Dinsdag 5-5-2026
Seringenlaan 5, 3871CC Hoevelaken

Binnenkijken bij
Dinsdag 5-5-2026
Meerveldlaan 10, 3871ED Hoevelaken

Binnenkijken bij
Dinsdag 5-5-2026
Willem de Zwijgerlaan 21, 3871CE Hoevelaken

Binnenkijken bij
Dinsdag 5-5-2026
Meerveldlaan 65, 3871EC Hoevelaken

Nieuw bedrijf
Mei 2026
Stoutenburgerlaan 3, 3871JA Hoevelaken

Nieuw bedrijf
April 2026
Willem de Zwijgerlaan 13, 3871CE Hoevelaken

Direct een e-mail ontvangen bij nieuwe meldingen in deze regio?

Meld je dan GRATIS aan voor de Oozo Alert service voor Hoevelaken-Stoutenburgerlaan-Oost

Instellen

Meer nieuws in Hoevelaken-Stoutenburgerlaan-Oost

Weten hoe eenvoudig het is om af te vallen? Zonder pillen en smeersels en zonder je in het zweet te werken!
Kijk op eenvoudig-afvallen.nl

© 2012 - 2026 OOZO.nl - info@oozo.nl - Gegevens verwijderen? | Disclaimer | Privacy statement