Woning Muldersweg 193 Nijmegen

Muldersweg 193, 6532WZ Nijmegen

Ontvang updates voor Neerbosch-Oost

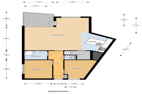
Het adres van deze woning uit 1997 is Muldersweg 193 te Nijmegen. Het pand heeft een oppervlakte van 83m² en heeft 3 kamers kamers waarvan 2 slaapkamers. De geschatte waarde van deze woning is € 375.000.

Bekijk alle woningen in Neerbosch-Oost

Gegevens van Galerijflat (appartement)

Bouwjaar
1997
Geschatte waarde
€ 375.000
Oppervlakte
83 m2
Inhoud
267 m3
Aantal kamers
3 kamers
Slaapkamers
2
Badkamers
1 badkamer en 1 apart toilet
Soort bouw
Bestaande bouw
Eigendomssituatie
Volle eigendom
Ligging
Aan rustige weg en vrij uitzicht

Voorzieningen in de buurt

Boodschappen0,5 km
Grote supermarkt0,5 km
Cafetaria0,5 km
Restaurant1,3 km
Huisarts1,1 km
Ziekenhuis2,4 km
Kinderdagverblijf0,5 km
BSO0,5 km
Alle voorzieningen in Neerbosch-Oost

Binnenkijken bij Muldersweg 193 te Nijmegen

Meer meldingen in deze omgeving

112 melding
Dinsdag 17-3-2026 om 16:59
Boeckstaetehof, Nijmegen

112 melding
Zaterdag 14-3-2026 om 18:43
Dorpsstraat, 6544AE Nijmegen

Binnenkijken bij
Zaterdag 14-3-2026
Symfoniestraat 54, 6544TL Nijmegen

Binnenkijken bij
Zaterdag 14-3-2026
Lierstraat 27, 6544XH Nijmegen

Nieuw bedrijf
Maart 2026
Symfoniestraat 200, 6544TN Nijmegen

Binnenkijken bij
Donderdag 12-3-2026
Henk van Tienhovenstraat 12, 6543JB Nijmegen

Binnenkijken bij
Maandag 9-3-2026
Etudestraat 56, 6544RT Nijmegen

Nieuw bedrijf
Maart 2026
Jan Brinkhoffplantsoen 37, 6543KA Nijmegen

Direct een e-mail ontvangen bij nieuwe meldingen in deze regio?

Meld je dan GRATIS aan voor de Oozo Alert service voor Neerbosch-Oost

Instellen

Meer nieuws in Neerbosch-Oost

Weten hoe eenvoudig het is om af te vallen? Zonder pillen en smeersels en zonder je in het zweet te werken!
Kijk op eenvoudig-afvallen.nl

© 2012 - 2026 OOZO.nl - info@oozo.nl - Gegevens verwijderen? | Disclaimer | Privacy statement