Woning Professor van Ginnekenstraat 15 Nijmegen

Professor van Ginnekenstraat 15, 6524RC Nijmegen

Ontvang updates voor Galgenveld

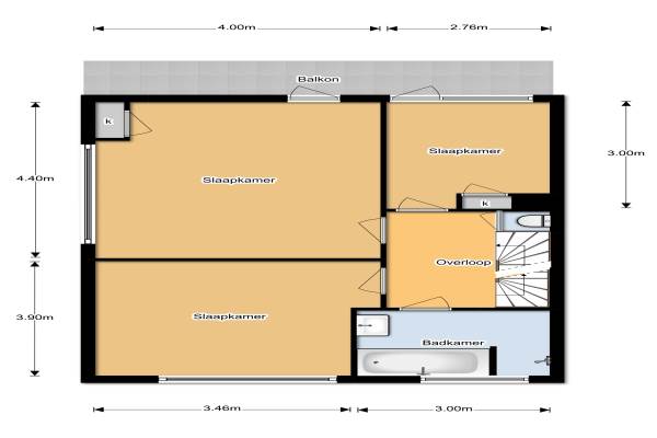
Het adres van deze woning uit 1956 is Professor van Ginnekenstraat 15 te Nijmegen. Het pand heeft een oppervlakte van 135m² en een perceeloppervlakte van 251m² en heeft 5 kamers kamers waarvan 4 slaapkamers. De geschatte waarde van deze woning is € 500.000.

Bekijk alle woningen in Galgenveld

Gegevens van Herenhuis, hoekwoning

Bouwjaar
1956
Geschatte waarde
€ 500.000
Oppervlakte
135 m2
Inhoud
400 m3
Aantal kamers
5 kamers
Slaapkamers
4
Badkamers
1 badkamer en 2 aparte toiletten
Soort bouw
Bestaande bouw
Eigendomssituatie
Volle eigendom
Ligging
In woonwijk en open ligging
Tuin
Achtertuin, voortuin en zijtuin
Achtertuin
117 m² (13m diep en 9m breed)

Voorzieningen in de buurt

Boodschappen0,2 km
Grote supermarkt0,5 km
Cafetaria0,2 km
Restaurant0,3 km
Huisarts0,4 km
Ziekenhuis1,9 km
Kinderdagverblijf0,4 km
BSO0,4 km
Alle voorzieningen in Galgenveld

Binnenkijken bij Professor van Ginnekenstraat 15 te Nijmegen

Meer meldingen in deze omgeving

Binnenkijken bij
Zaterdag 29-11-2025
Gelderselaan 68, 6523LL Nijmegen

Binnenkijken bij
Vrijdag 28-11-2025
Professor van Weliestraat 26, 6524NN Nijmegen

Nieuw bedrijf
November 2025
St. Annastraat 82, 6524GH Nijmegen

Nieuw bedrijf
November 2025
Medanstraat 2, 6524KL Nijmegen

Nieuw bedrijf
November 2025
Palembangstraat 34, 6524KX Nijmegen

Nieuw bedrijf
November 2025
Fransestraat 50, 6524JD Nijmegen

Nieuw bedrijf
November 2025
Oude Groenewoudseweg 198, 6524VX Nijmegen

Nieuw bedrijf
November 2025
St. Annastraat 181, 6524EV Nijmegen

Direct een e-mail ontvangen bij nieuwe meldingen in deze regio?

Meld je dan GRATIS aan voor de Oozo Alert service voor Galgenveld

Instellen

Meer nieuws in Galgenveld

Weten hoe eenvoudig het is om af te vallen? Zonder pillen en smeersels en zonder je in het zweet te werken!
Kijk op eenvoudig-afvallen.nl

© 2012 - 2025 OOZO.nl - info@oozo.nl - Gegevens verwijderen? | Disclaimer | Privacy statement