Woning van der Duyn van Maasdamstraat 68 Nijmegen

van der Duyn van Maasdamstraat 68, 6535VX Nijmegen

Ontvang updates voor Hatert

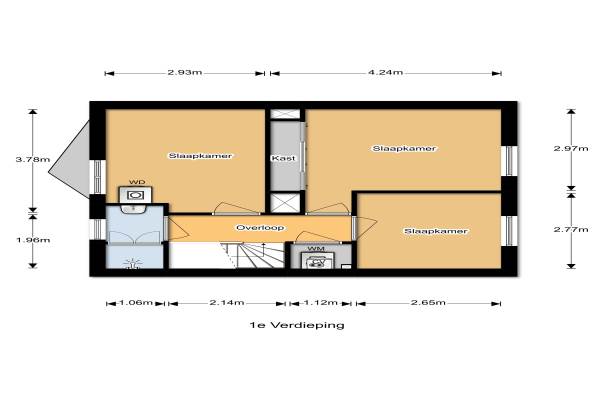
Het adres van deze woning uit 1965 is van der Duyn van Maasdamstraat 68 te Nijmegen. Het pand heeft een oppervlakte van 86m² en een perceeloppervlakte van 113m² en heeft 4 kamers kamers waarvan 3 slaapkamers. De geschatte waarde van deze woning is € 167.500.

Bekijk alle woningen in Hatert

Gegevens van Eengezinswoning, tussenwoning

Bouwjaar
1965
Geschatte waarde
€ 167.500
Oppervlakte
86 m2
Inhoud
292 m3
Aantal kamers
4 kamers
Slaapkamers
3
Badkamers
1 badkamer en 1 apart toilet
Soort bouw
Bestaande bouw
Eigendomssituatie
Volle eigendom
Ligging
In woonwijk
Tuin
Achtertuin en voortuin
Achtertuin
51 m² (8,5m diep en 6m breed)

Voorzieningen in de buurt

Boodschappen0,6 km
Grote supermarkt0,6 km
Cafetaria0,4 km
Restaurant0,5 km
Huisarts0,7 km
Ziekenhuis1,7 km
Kinderdagverblijf0,5 km
BSO0,7 km
Alle voorzieningen in Hatert

Binnenkijken bij van der Duyn van Maasdamstraat 68 te Nijmegen

Meer meldingen in deze omgeving

Binnenkijken bij
Zondag 15-3-2026
Agaatstraat 17, 6534WS Nijmegen

Binnenkijken bij
Zaterdag 14-3-2026
Ruys de Beerenbrouckstraat 82, 6535XX Nijmegen

Binnenkijken bij
Donderdag 12-3-2026
Saffierstraat 10, 6534WK Nijmegen

Binnenkijken bij
Dinsdag 10-3-2026
van Limburg Stirumstraat 13, 6535XE Nijmegen

Nieuw bedrijf
Maart 2026
Duvensteinstraat 11, 6535RP Nijmegen

Nieuw bedrijf
Maart 2026
de Savornin Lohmanstraat 54, 6535SZ Nijmegen

112 melding
Zondag 8-3-2026 om 17:38
Ruys de Beerenbrouckstraat, Nijmegen

112 melding
Zondag 8-3-2026 om 17:27
Ruys de Beerenbrouckstraat, Nijmegen

Direct een e-mail ontvangen bij nieuwe meldingen in deze regio?

Meld je dan GRATIS aan voor de Oozo Alert service voor Hatert

Instellen

Meer nieuws in Hatert

Weten hoe eenvoudig het is om af te vallen? Zonder pillen en smeersels en zonder je in het zweet te werken!
Kijk op eenvoudig-afvallen.nl

© 2012 - 2026 OOZO.nl - info@oozo.nl - Gegevens verwijderen? | Disclaimer | Privacy statement