Woning J. Sasboutstraat 73 Spijkenisse

J. Sasboutstraat 73, 3201PC Spijkenisse

Ontvang updates voor Centrum-Zuid

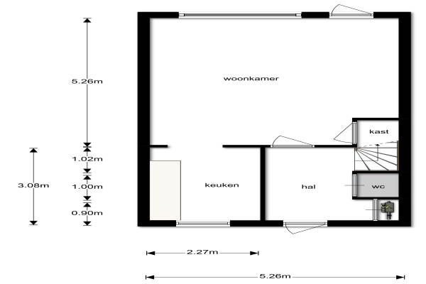
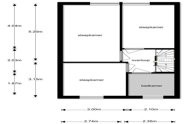
Het adres van deze woning uit 1982 is J. Sasboutstraat 73 te Spijkenisse. Het pand heeft een oppervlakte van 108m² en een perceeloppervlakte van 177m² en heeft 5 kamers kamers waarvan 4 slaapkamers. De geschatte waarde van deze woning is € 204.500.

Bekijk alle woningen in Centrum-Zuid

Gegevens van Eengezinswoning, hoekwoning

Bouwjaar
1982
Geschatte waarde
€ 204.500
Oppervlakte
108 m2
Inhoud
320 m3
Aantal kamers
5 kamers
Slaapkamers
4
Badkamers
1 badkamer en 1 apart toilet
Soort bouw
Bestaande bouw
Eigendomssituatie
Volle eigendom
Ligging
Aan rustige weg, beschutte ligging, in centrum en in woonwijk
Tuin
Achtertuin en voortuin
Achtertuin
52 m² (10m diep en 5,2m breed)

Voorzieningen in de buurt

Boodschappen0,3 km
Grote supermarkt0,7 km
Cafetaria0,3 km
Restaurant0,5 km
Huisarts0,5 km
Ziekenhuis0,7 km
Kinderdagverblijf1,2 km
BSO0,4 km
Alle voorzieningen in Centrum-Zuid

Binnenkijken bij J. Sasboutstraat 73 te Spijkenisse

Meer meldingen in deze omgeving

112 melding
Donderdag 20-11-2025 om 08:56
Andries van Bronckhorstlaan, 3201XH Spijkenisse

Nieuw bedrijf
November 2025
D.C. Meesstraat 30, 3201RA Spijkenisse

112 melding
Zaterdag 15-11-2025 om 21:14
Andries van Bronckhorstlaan, 3201XB Spijkenisse

Binnenkijken bij
Dinsdag 11-11-2025
Raadhuislaan 94, 3201EL Spijkenisse

Binnenkijken bij
Dinsdag 11-11-2025
J. Sasboutstraat 4, 3201PD Spijkenisse

Nieuw bedrijf
November 2025
Andries van Bronckhorstlaan 475, 3201XJ Spijkenisse

112 melding
Zondag 9-11-2025 om 10:26
Andries van Bronckhorstlaan, 3201XE Spijkenisse

112 melding
Zaterdag 8-11-2025 om 10:27
D.C. Meesstraat, 3201RA Spijkenisse

Direct een e-mail ontvangen bij nieuwe meldingen in deze regio?

Meld je dan GRATIS aan voor de Oozo Alert service voor Centrum-Zuid

Instellen

Meer nieuws in Centrum-Zuid

Weten hoe eenvoudig het is om af te vallen? Zonder pillen en smeersels en zonder je in het zweet te werken!
Kijk op eenvoudig-afvallen.nl

© 2012 - 2025 OOZO.nl - info@oozo.nl - Gegevens verwijderen? | Disclaimer | Privacy statement