Woning Maisdreef 4 Spijkenisse

Maisdreef 4, 3204GM Spijkenisse

Ontvang updates voor Dreven

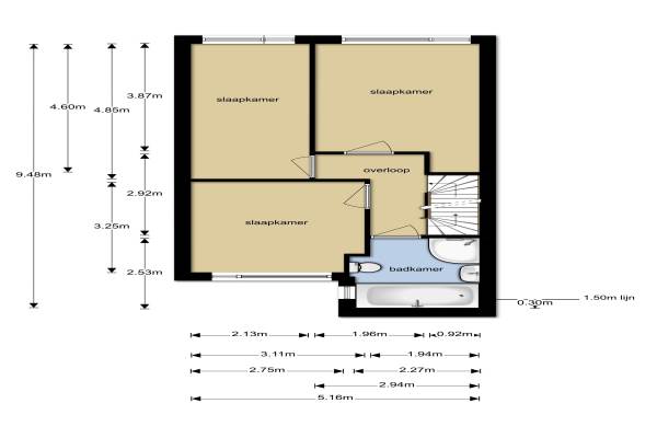
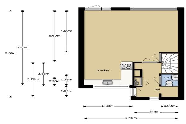
Het adres van deze woning uit 1981 is Maisdreef 4 te Spijkenisse. Het pand heeft een oppervlakte van 120m² en een perceeloppervlakte van 135m² en heeft 6 kamers kamers waarvan 5 slaapkamers. De geschatte waarde van deze woning is € 189.500.

Bekijk alle woningen in Dreven

Gegevens van Eengezinswoning, tussenwoning

Bouwjaar
1981
Geschatte waarde
€ 189.500
Oppervlakte
120 m2
Inhoud
290 m3
Aantal kamers
6 kamers
Slaapkamers
5
Badkamers
1 badkamer en 1 apart toilet
Soort bouw
Bestaande bouw
Eigendomssituatie
Volle eigendom
Ligging
Aan water, aan rustige weg en in woonwijk
Tuin
Achtertuin en voortuin
Achtertuin
65 m² (13m diep en 5m breed)

Voorzieningen in de buurt

Boodschappen0,9 km
Grote supermarkt1,0 km
Cafetaria1,0 km
Restaurant0,9 km
Huisarts0,9 km
Ziekenhuis1,7 km
Kinderdagverblijf0,2 km
BSO0,9 km
Alle voorzieningen in Dreven

Binnenkijken bij Maisdreef 4 te Spijkenisse

Meer meldingen in deze omgeving

112 melding
Vrijdag 15-5-2026 om 19:03
Lijnzaaddreef, 3204HB Spijkenisse

112 melding
Donderdag 14-5-2026 om 20:25
Maanzaaddreef, 3204GL Spijkenisse

112 melding
Woensdag 13-5-2026 om 13:07
Dreef, 3204GB Spijkenisse

Nieuw bedrijf
Mei 2026
Koolzaaddreef 4, 3204GK Spijkenisse

112 melding
Zondag 10-5-2026 om 09:26
Indigodreef, 3204GG Spijkenisse

112 melding
Zaterdag 9-5-2026 om 22:33
Lijnzaaddreef, 3204HB Spijkenisse

112 melding
Zaterdag 9-5-2026 om 22:24
Lijnzaaddreef, 3204HB Spijkenisse

112 melding
Zaterdag 9-5-2026 om 21:42
Lijnzaaddreef, 3204HB Spijkenisse

Direct een e-mail ontvangen bij nieuwe meldingen in deze regio?

Meld je dan GRATIS aan voor de Oozo Alert service voor Dreven

Instellen

Meer nieuws in Dreven

Weten hoe eenvoudig het is om af te vallen? Zonder pillen en smeersels en zonder je in het zweet te werken!
Kijk op eenvoudig-afvallen.nl

© 2012 - 2026 OOZO.nl - info@oozo.nl - Gegevens verwijderen? | Disclaimer | Privacy statement