Woning Schervenkreek 8 Spijkenisse

Schervenkreek 8, 3206GK Spijkenisse

Ontvang updates voor Kreken

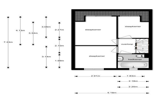
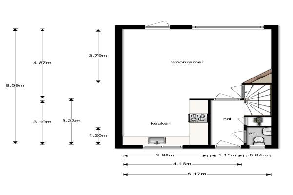
Het adres van deze woning uit 1982 is Schervenkreek 8 te Spijkenisse. Het pand heeft een oppervlakte van 100m² en een perceeloppervlakte van 124m² en heeft 5 kamers kamers waarvan 4 slaapkamers. De geschatte waarde van deze woning is € 189.900.

Bekijk alle woningen in Kreken

Gegevens van Eengezinswoning, tussenwoning

Bouwjaar
1982
Geschatte waarde
€ 189.900
Oppervlakte
100 m2
Inhoud
240 m3
Aantal kamers
5 kamers
Slaapkamers
4
Badkamers
1 badkamer en 1 apart toilet
Soort bouw
Bestaande bouw
Eigendomssituatie
Volle eigendom
Ligging
Aan rustige weg en in woonwijk
Tuin
Achtertuin en voortuin
Achtertuin
55 m² (11m diep en 5m breed)

Voorzieningen in de buurt

Boodschappen0,8 km
Grote supermarkt0,8 km
Cafetaria0,6 km
Restaurant0,6 km
Huisarts1,2 km
Ziekenhuis2,9 km
Kinderdagverblijf1,2 km
BSO1,3 km
Alle voorzieningen in Kreken

Binnenkijken bij Schervenkreek 8 te Spijkenisse

Meer meldingen in deze omgeving

112 melding
Zondag 19-10-2025 om 05:27
Slagsteenkreek, 3206GL Spijkenisse

112 melding
Donderdag 16-10-2025 om 19:58
Houtskoolkreek, 3206HH Spijkenisse

Nieuw bedrijf
Oktober 2025
Slagsteenkreek 15, 3206GL Spijkenisse

112 melding
Woensdag 15-10-2025 om 14:12
Peddelkreek, 3206GH Spijkenisse

112 melding
Maandag 13-10-2025 om 12:48
Vuursteenkreek, 3206HR Spijkenisse

112 melding
Zaterdag 11-10-2025 om 11:18
Jagerskreek, 3206HJ Spijkenisse

112 melding
Donderdag 9-10-2025 om 23:08
Visserskreek, 3206GR Spijkenisse

Binnenkijken bij
Donderdag 9-10-2025
Vuursteenkreek 19, 3206HR Spijkenisse

Direct een e-mail ontvangen bij nieuwe meldingen in deze regio?

Meld je dan GRATIS aan voor de Oozo Alert service voor Kreken

Instellen

Meer nieuws in Kreken

Weten hoe eenvoudig het is om af te vallen? Zonder pillen en smeersels en zonder je in het zweet te werken!
Kijk op eenvoudig-afvallen.nl

© 2012 - 2025 OOZO.nl - info@oozo.nl - Gegevens verwijderen? | Disclaimer | Privacy statement