Woning Dr J M den Uylstraat 21 Oudenhoorn

Dr J M den Uylstraat 21, 3227AX Oudenhoorn

Ontvang updates voor Kern Oudenhoorn

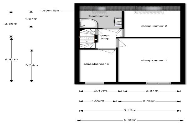
Het adres van deze woning uit 1989 is Dr J M den Uylstraat 21 te Oudenhoorn. Het pand heeft een oppervlakte van 100m² en een perceeloppervlakte van 120m² en heeft 5 kamers kamers waarvan 4 slaapkamers. De geschatte waarde van deze woning is € 185.000.

Bekijk alle woningen in Kern Oudenhoorn

Gegevens van Eengezinswoning, tussenwoning

Bouwjaar
1989
Geschatte waarde
€ 185.000
Oppervlakte
100 m2
Inhoud
325 m3
Aantal kamers
5 kamers
Slaapkamers
4
Badkamers
1 badkamer en 1 apart toilet
Soort bouw
Bestaande bouw
Eigendomssituatie
Volle eigendom
Ligging
Aan rustige weg en vrij uitzicht
Tuin
Achtertuin en voortuin
Achtertuin
39 m² (7m diep en 5,5m breed)

Voorzieningen in de buurt

Binnenkijken bij Dr J M den Uylstraat 21 te Oudenhoorn

Meer meldingen in deze omgeving

112 melding
Dinsdag 25-11-2025 om 06:15
Willem Hoogenboomstraat, 3227AW Oudenhoorn

112 melding
Maandag 24-11-2025 om 13:19
Willem Hoogenboomstraat, 3227AW Oudenhoorn

Nieuw bedrijf
November 2025
Cornelis Blaakstraat 14, 3227AE Oudenhoorn

Nieuw bedrijf
November 2025
Cornelis Blaakstraat 14, 3227AE Oudenhoorn

112 melding
Zaterdag 15-11-2025 om 13:03
Heullaan, 3227AJ Oudenhoorn

Binnenkijken bij
Vrijdag 14-11-2025
Julianastraat 19, 3227AL Oudenhoorn

112 melding
Donderdag 13-11-2025 om 20:54
Heullaan, 3227AJ Oudenhoorn

112 melding
Donderdag 13-11-2025 om 14:22
Heullaan, 3227AJ Oudenhoorn

Direct een e-mail ontvangen bij nieuwe meldingen in deze regio?

Meld je dan GRATIS aan voor de Oozo Alert service voor Kern Oudenhoorn

Instellen

Meer nieuws in Kern Oudenhoorn

Weten hoe eenvoudig het is om af te vallen? Zonder pillen en smeersels en zonder je in het zweet te werken!
Kijk op eenvoudig-afvallen.nl

© 2012 - 2025 OOZO.nl - info@oozo.nl - Gegevens verwijderen? | Disclaimer | Privacy statement