Woning Gambiastraat 7 Spijkenisse

Gambiastraat 7, 3207AB Spijkenisse

Ontvang updates voor Schenkel-Zuidoost

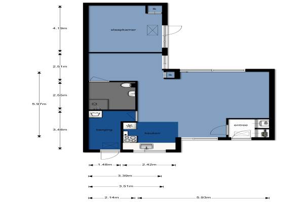
Het adres van deze woning uit 1988 is Gambiastraat 7 te Spijkenisse. Het pand heeft een oppervlakte van 78m² en een perceeloppervlakte van 138m² en heeft 3 kamers kamers waarvan 2 slaapkamers. De geschatte waarde van deze woning is € 189.500.

Bekijk alle woningen in Schenkel-Zuidoost

Gegevens van Eengezinswoning, tussenwoning (patiowoning)

Bouwjaar
1988
Geschatte waarde
€ 189.500
Oppervlakte
78 m2
Inhoud
215 m3
Aantal kamers
3 kamers
Slaapkamers
2
Badkamers
1 badkamer en 1 apart toilet
Soort bouw
Bestaande bouw
Eigendomssituatie
Volle eigendom
Ligging
Aan rustige weg en in woonwijk
Tuin
Achtertuin
Achtertuin
24 m² (0,06m diep en 0,04m breed)

Voorzieningen in de buurt

Boodschappen1,5 km
Grote supermarkt1,5 km
Cafetaria1,7 km
Restaurant0,7 km
Huisarts0,5 km
Ziekenhuis1,6 km
Kinderdagverblijf0,9 km
BSO0,3 km
Alle voorzieningen in Schenkel-Zuidoost

Binnenkijken bij Gambiastraat 7 te Spijkenisse

Meer meldingen in deze omgeving

Binnenkijken bij
Dinsdag 18-11-2025
Eufraatstraat 4, 3207AA Spijkenisse

Binnenkijken bij
Zondag 16-11-2025
Rivierlaan 30, 3207BL Spijkenisse

Binnenkijken bij
Vrijdag 14-11-2025
Rivierlaan 4, 3207BL Spijkenisse

Binnenkijken bij
Dinsdag 11-11-2025
Nijlstraat 30, 3207AL Spijkenisse

Binnenkijken bij
Dinsdag 11-11-2025
Jordaanstraat 14, 3207AE Spijkenisse

112 melding
Zondag 9-11-2025 om 15:27
Eufraatstraat, 3207AA Spijkenisse

112 melding
Vrijdag 7-11-2025 om 02:18
Jordaanstraat, 3207AE Spijkenisse

Binnenkijken bij
Woensdag 29-10-2025
Tamarstraat 14, 3207AM Spijkenisse

Direct een e-mail ontvangen bij nieuwe meldingen in deze regio?

Meld je dan GRATIS aan voor de Oozo Alert service voor Schenkel-Zuidoost

Instellen

Meer nieuws in Schenkel-Zuidoost

Weten hoe eenvoudig het is om af te vallen? Zonder pillen en smeersels en zonder je in het zweet te werken!
Kijk op eenvoudig-afvallen.nl

© 2012 - 2025 OOZO.nl - info@oozo.nl - Gegevens verwijderen? | Disclaimer | Privacy statement