Woning Amazonestraat 48 Spijkenisse

Amazonestraat 48, 3207NB Spijkenisse

Ontvang updates voor Schenkel-Zuidwest

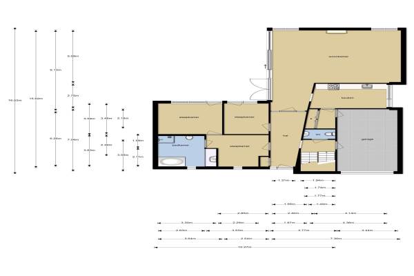
Het adres van deze woning uit 1994 is Amazonestraat 48 te Spijkenisse. Het pand heeft een oppervlakte van 170m² en een perceeloppervlakte van 500m² en heeft 6 kamers kamers waarvan 4 slaapkamers. De geschatte waarde van deze woning is € 525.000.

Bekijk alle woningen in Schenkel-Zuidwest

Gegevens van Bungalow, vrijstaande woning

Bouwjaar
1994
Geschatte waarde
€ 525.000
Oppervlakte
170 m2
Inhoud
500 m3
Aantal kamers
6 kamers
Slaapkamers
4
Badkamers
2 badkamers en 1 apart toilet
Soort bouw
Bestaande bouw
Eigendomssituatie
Volle eigendom
Ligging
Aan water, aan rustige weg, in woonwijk en vrij uitzicht
Tuin
Tuin rondom

Voorzieningen in de buurt

Boodschappen1,0 km
Grote supermarkt1,1 km
Cafetaria1,1 km
Restaurant0,4 km
Huisarts0,4 km
Ziekenhuis1,0 km
Kinderdagverblijf0,4 km
BSO0,3 km
Alle voorzieningen in Schenkel-Zuidwest

Binnenkijken bij Amazonestraat 48 te Spijkenisse

Meer meldingen in deze omgeving

Binnenkijken bij
Dinsdag 11-11-2025
Rio Grandestraat 34, 3207NK Spijkenisse

112 melding
Vrijdag 7-11-2025 om 23:14
Saarhof, 3207PH Spijkenisse

112 melding
Vrijdag 7-11-2025 om 07:27
Ebrostraat, 3207CC Spijkenisse

112 melding
Vrijdag 31-10-2025 om 20:48
Seinestraat, 3207CJ Spijkenisse

112 melding
Vrijdag 31-10-2025 om 14:32
Kyllstraat, 3207PB Spijkenisse

112 melding
Donderdag 30-10-2025 om 15:53
Kyllstraat, 3207PB Spijkenisse

Nieuw bedrijf
Oktober 2025
Mainstraat 27, 3207PC Spijkenisse

Binnenkijken bij
Woensdag 29-10-2025
Amazonestraat 15, 3207NA Spijkenisse

Direct een e-mail ontvangen bij nieuwe meldingen in deze regio?

Meld je dan GRATIS aan voor de Oozo Alert service voor Schenkel-Zuidwest

Instellen

Meer nieuws in Schenkel-Zuidwest

Weten hoe eenvoudig het is om af te vallen? Zonder pillen en smeersels en zonder je in het zweet te werken!
Kijk op eenvoudig-afvallen.nl

© 2012 - 2025 OOZO.nl - info@oozo.nl - Gegevens verwijderen? | Disclaimer | Privacy statement