Woning Rijnlaan 12 Spijkenisse

Rijnlaan 12, 3207PG Spijkenisse

Ontvang updates voor Schenkel-Zuidwest

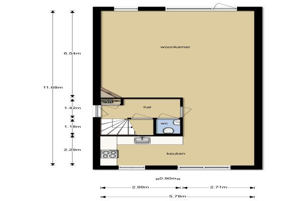
Het adres van deze woning uit 1986 is Rijnlaan 12 te Spijkenisse. Het pand heeft een oppervlakte van 142m² en een perceeloppervlakte van 173m² en heeft 5 kamers kamers waarvan 4 slaapkamers. De geschatte waarde van deze woning is € 345.000.

Bekijk alle woningen in Schenkel-Zuidwest

Gegevens van Eengezinswoning, eindwoning

Bouwjaar
1986
Geschatte waarde
€ 345.000
Oppervlakte
142 m2
Inhoud
476 m3
Aantal kamers
5 kamers
Slaapkamers
4
Soort bouw
Bestaande bouw
Ligging
In woonwijk
Tuin
Voortuin en achtertuin
Achtertuin
84 m² (0,01m diep en 0,01m breed)

Voorzieningen in de buurt

Boodschappen1,0 km
Grote supermarkt1,1 km
Cafetaria1,1 km
Restaurant0,4 km
Huisarts0,4 km
Ziekenhuis1,0 km
Kinderdagverblijf0,4 km
BSO0,3 km
Alle voorzieningen in Schenkel-Zuidwest

Binnenkijken bij Rijnlaan 12 te Spijkenisse

Meer meldingen in deze omgeving

112 melding
Dinsdag 16-12-2025 om 14:26
Seinestraat, 3207CJ Spijkenisse

112 melding
Zondag 14-12-2025 om 13:25
Oderstraat, 3207CG Spijkenisse

112 melding
Zaterdag 13-12-2025 om 11:35
Yukonstraat, 3207NL Spijkenisse

Binnenkijken bij
Zaterdag 13-12-2025
Donaulaan 122, 3207CB Spijkenisse

Nieuw bedrijf
December 2025
Seinestraat 11, 3207CJ SPIJKENISSE

112 melding
Zaterdag 6-12-2025 om 20:12
Donaulaan, 3207CA Spijkenisse

Faillissement
Vrijdag 5-12-2025
Oderstraat 35, 3207CG Spijkenisse

112 melding
Donderdag 4-12-2025 om 09:24
Donaulaan, 3207CA Spijkenisse

Direct een e-mail ontvangen bij nieuwe meldingen in deze regio?

Meld je dan GRATIS aan voor de Oozo Alert service voor Schenkel-Zuidwest

Instellen

Meer nieuws in Schenkel-Zuidwest

Weten hoe eenvoudig het is om af te vallen? Zonder pillen en smeersels en zonder je in het zweet te werken!
Kijk op eenvoudig-afvallen.nl

© 2012 - 2025 OOZO.nl - info@oozo.nl - Gegevens verwijderen? | Disclaimer | Privacy statement