Woning Gerard Doustraat 3 Spijkenisse

Gerard Doustraat 3, 3202TJ Spijkenisse

Ontvang updates voor Schiekamp-Noord

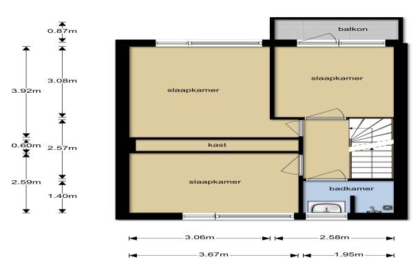
Het adres van deze woning uit 1960 is Gerard Doustraat 3 te Spijkenisse. Het pand heeft een oppervlakte van 95m² en een perceeloppervlakte van 138m² en heeft 5 kamers kamers waarvan 4 slaapkamers. De geschatte waarde van deze woning is € 184.000.

Bekijk alle woningen in Schiekamp-Noord

Gegevens van Eengezinswoning, tussenwoning

Bouwjaar
1960
Geschatte waarde
€ 184.000
Oppervlakte
95 m2
Inhoud
240 m3
Aantal kamers
5 kamers
Slaapkamers
4
Badkamers
1 apart toilet
Soort bouw
Bestaande bouw
Eigendomssituatie
Volle eigendom
Ligging
In woonwijk en vrij uitzicht
Tuin
Achtertuin en voortuin
Achtertuin
66 m² (11,5m diep en 5,76m breed)

Voorzieningen in de buurt

Boodschappen0,6 km
Grote supermarkt0,8 km
Cafetaria0,5 km
Restaurant0,5 km
Huisarts0,8 km
Ziekenhuis2,8 km
Kinderdagverblijf0,7 km
BSO0,7 km
Alle voorzieningen in Schiekamp-Noord

Binnenkijken bij Gerard Doustraat 3 te Spijkenisse

Meer meldingen in deze omgeving

Faillissement
Maandag 30-3-2026
Lucebertstraat 28, 3202SW Spijkenisse

112 melding
Zondag 29-3-2026 om 14:48
Rembrandtstraat, Spijkenisse

112 melding
Zondag 29-3-2026 om 14:48
Rembrandtstraat, 3202EM Spijkenisse

112 melding
Zondag 29-3-2026 om 14:46
Rembrandtstraat, 3202EM Spijkenisse

112 melding
Maandag 16-3-2026 om 14:29
Piet Mondriaanpad, 3202EZ Spijkenisse

112 melding
Donderdag 12-3-2026 om 20:16
Frans Halsstraat, 3202TE Spijkenisse

Nieuw bedrijf
Maart 2026
Carel Fabritiuspad 1, 3202TC Spijkenisse

Binnenkijken bij
Zaterdag 7-3-2026
Rembrandtstraat 60B, 3202ET Spijkenisse

Direct een e-mail ontvangen bij nieuwe meldingen in deze regio?

Meld je dan GRATIS aan voor de Oozo Alert service voor Schiekamp-Noord

Instellen

Meer nieuws in Schiekamp-Noord

Weten hoe eenvoudig het is om af te vallen? Zonder pillen en smeersels en zonder je in het zweet te werken!
Kijk op eenvoudig-afvallen.nl

© 2012 - 2026 OOZO.nl - info@oozo.nl - Gegevens verwijderen? | Disclaimer | Privacy statement