Woning Hieronymus Boschpad 5 Spijkenisse

Hieronymus Boschpad 5, 3202TK Spijkenisse

Ontvang updates voor Schiekamp-Noord

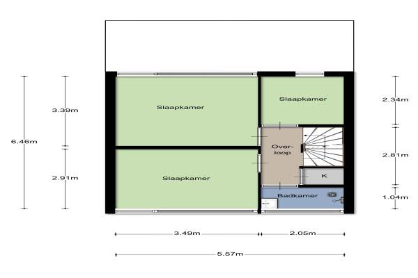
Het adres van deze woning uit 1963 is Hieronymus Boschpad 5 te Spijkenisse. Het pand heeft een oppervlakte van 78m² en een perceeloppervlakte van 125m² en heeft 5 kamers kamers waarvan 4 slaapkamers. De geschatte waarde van deze woning is € 179.500.

Bekijk alle woningen in Schiekamp-Noord

Gegevens van Eengezinswoning, tussenwoning

Bouwjaar
1963
Geschatte waarde
€ 179.500
Oppervlakte
78 m2
Inhoud
308 m3
Aantal kamers
5 kamers
Slaapkamers
4
Badkamers
1 badkamer en 1 apart toilet
Soort bouw
Bestaande bouw
Eigendomssituatie
Volle eigendom
Ligging
Aan park en in woonwijk
Tuin
Achtertuin en voortuin
Achtertuin
58 m² (10,5m diep en 5,5m breed)

Voorzieningen in de buurt

Boodschappen0,6 km
Grote supermarkt0,8 km
Cafetaria0,5 km
Restaurant0,5 km
Huisarts0,8 km
Ziekenhuis2,8 km
Kinderdagverblijf0,7 km
BSO0,7 km
Alle voorzieningen in Schiekamp-Noord

Binnenkijken bij Hieronymus Boschpad 5 te Spijkenisse

Meer meldingen in deze omgeving

112 melding
Woensdag 25-2-2026 om 12:42
Frans Halsstraat, 3202TD Spijkenisse

112 melding
Dinsdag 24-2-2026 om 21:38
Frans Halsstraat, 3202TD Spijkenisse

Binnenkijken bij
Donderdag 19-2-2026
Jan Steenstraat 17, 3202ED Spijkenisse

Onroerend goed
Zaterdag 14-2-2026
Lucebertstraat 30, 3202SW Spijkenisse

Binnenkijken bij
Vrijdag 13-2-2026
Hieronymus Boschpad 4, 3202TK Spijkenisse

112 melding
Zondag 8-2-2026 om 01:09
Frans Halsstraat, 3202TD Spijkenisse

Binnenkijken bij
Woensdag 28-1-2026
Gerard Doustraat 15, 3202TJ Spijkenisse

112 melding
Dinsdag 27-1-2026 om 13:11
Piet Mondriaanpad, 3202EZ Spijkenisse

Direct een e-mail ontvangen bij nieuwe meldingen in deze regio?

Meld je dan GRATIS aan voor de Oozo Alert service voor Schiekamp-Noord

Instellen

Meer nieuws in Schiekamp-Noord

Weten hoe eenvoudig het is om af te vallen? Zonder pillen en smeersels en zonder je in het zweet te werken!
Kijk op eenvoudig-afvallen.nl

© 2012 - 2026 OOZO.nl - info@oozo.nl - Gegevens verwijderen? | Disclaimer | Privacy statement