Woning Frans Halsstraat 55 Spijkenisse

Frans Halsstraat 55, 3202TG Spijkenisse

Ontvang updates voor Schiekamp-Noord

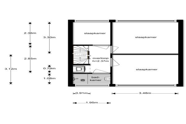
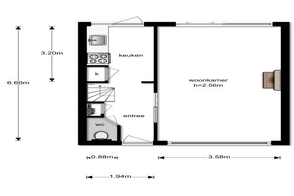
Het adres van deze woning uit 1959 is Frans Halsstraat 55 te Spijkenisse. Het pand heeft een oppervlakte van 89m² en een perceeloppervlakte van 168m² en heeft 5 kamers kamers waarvan 4 slaapkamers. De geschatte waarde van deze woning is € 150.000.

Bekijk alle woningen in Schiekamp-Noord

Gegevens van Eengezinswoning, eindwoning

Bouwjaar
1959
Geschatte waarde
€ 150.000
Oppervlakte
89 m2
Inhoud
285 m3
Aantal kamers
5 kamers
Slaapkamers
4
Badkamers
1 badkamer en 1 apart toilet
Soort bouw
Bestaande bouw
Eigendomssituatie
Volle eigendom
Ligging
Aan rustige weg en in woonwijk
Tuin
Achtertuin en voortuin
Achtertuin
98 m² (17m diep en 5,75m breed)

Voorzieningen in de buurt

Boodschappen0,6 km
Grote supermarkt0,8 km
Cafetaria0,5 km
Restaurant0,5 km
Huisarts0,8 km
Ziekenhuis2,8 km
Kinderdagverblijf0,7 km
BSO0,7 km
Alle voorzieningen in Schiekamp-Noord

Binnenkijken bij Frans Halsstraat 55 te Spijkenisse

Meer meldingen in deze omgeving

112 melding
Dinsdag 24-2-2026 om 21:38
Frans Halsstraat, 3202TD Spijkenisse

Binnenkijken bij
Donderdag 19-2-2026
Jan Steenstraat 17, 3202ED Spijkenisse

Onroerend goed
Zaterdag 14-2-2026
Lucebertstraat 30, 3202SW Spijkenisse

Binnenkijken bij
Vrijdag 13-2-2026
Hieronymus Boschpad 4, 3202TK Spijkenisse

112 melding
Zondag 8-2-2026 om 01:09
Frans Halsstraat, 3202TD Spijkenisse

Binnenkijken bij
Woensdag 28-1-2026
Gerard Doustraat 15, 3202TJ Spijkenisse

112 melding
Dinsdag 27-1-2026 om 13:11
Piet Mondriaanpad, 3202EZ Spijkenisse

Binnenkijken bij
Dinsdag 27-1-2026
Jan van Eyckpad 8, 3202TP Spijkenisse

Direct een e-mail ontvangen bij nieuwe meldingen in deze regio?

Meld je dan GRATIS aan voor de Oozo Alert service voor Schiekamp-Noord

Instellen

Meer nieuws in Schiekamp-Noord

Weten hoe eenvoudig het is om af te vallen? Zonder pillen en smeersels en zonder je in het zweet te werken!
Kijk op eenvoudig-afvallen.nl

© 2012 - 2026 OOZO.nl - info@oozo.nl - Gegevens verwijderen? | Disclaimer | Privacy statement