Woning W. Pijperstraat 10 Spijkenisse

W. Pijperstraat 10, 3208AW Spijkenisse

Ontvang updates voor Vogelenzang-Zuid

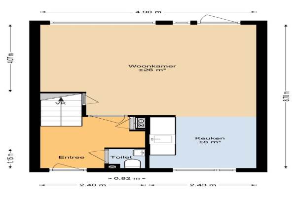
Het adres van deze woning uit 1983 is W. Pijperstraat 10 te Spijkenisse. Het pand heeft een oppervlakte van 76m² en een perceeloppervlakte van 140m² en heeft 4 kamers kamers waarvan 3 slaapkamers. De geschatte waarde van deze woning is € 310.000.

Bekijk alle woningen in Vogelenzang-Zuid

Gegevens van Eengezinswoning, tussenwoning

Bouwjaar
1983
Geschatte waarde
€ 310.000
Oppervlakte
76 m2
Inhoud
212 m3
Aantal kamers
4 kamers
Slaapkamers
3
Badkamers
1 badkamer en 1 apart toilet
Soort bouw
Bestaande bouw
Eigendomssituatie
Eigendom belast met erfpacht
Ligging
In woonwijk
Tuin
Achtertuin
Achtertuin
42 m² (9,00 meter diep en 4,70 meter breed)

Voorzieningen in de buurt

Boodschappen0,9 km
Grote supermarkt0,9 km
Cafetaria1,0 km
Restaurant1,0 km
Huisarts0,6 km
Ziekenhuis2,9 km
Kinderdagverblijf0,6 km
BSO0,6 km
Alle voorzieningen in Vogelenzang-Zuid

Binnenkijken bij W. Pijperstraat 10 te Spijkenisse

Meer meldingen in deze omgeving

112 melding
Zaterdag 2-5-2026 om 10:05
A. Diepenbrockstraat, 3208AB Spijkenisse

112 melding
Vrijdag 1-5-2026 om 23:32
Torellistraat, 3208NG Spijkenisse

112 melding
Vrijdag 1-5-2026 om 20:49
Chopinstraat, 3208RC Spijkenisse

112 melding
Vrijdag 1-5-2026 om 20:19
Wagnerlaan, 3208BN Spijkenisse

112 melding
Dinsdag 28-4-2026 om 21:08
Verdilaan, 3208NH Spijkenisse

112 melding
Zaterdag 25-4-2026 om 18:40
Verdilaan, 3208NH Spijkenisse

112 melding
Vrijdag 24-4-2026 om 16:38
Bachbaan, 3208BA Spijkenisse

112 melding
Vrijdag 24-4-2026 om 16:37
Bachbaan, Spijkenisse

Direct een e-mail ontvangen bij nieuwe meldingen in deze regio?

Meld je dan GRATIS aan voor de Oozo Alert service voor Vogelenzang-Zuid

Instellen

Meer nieuws in Vogelenzang-Zuid

Weten hoe eenvoudig het is om af te vallen? Zonder pillen en smeersels en zonder je in het zweet te werken!
Kijk op eenvoudig-afvallen.nl

© 2012 - 2026 OOZO.nl - info@oozo.nl - Gegevens verwijderen? | Disclaimer | Privacy statement