Woning Kikkerveen 135 Spijkenisse

Kikkerveen 135, 3205XA Spijkenisse

Ontvang updates voor Kikkerveen

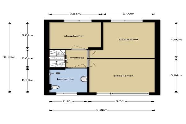
Het adres van deze woning uit 1973 is Kikkerveen 135 te Spijkenisse. Het pand heeft een oppervlakte van 132m² en een perceeloppervlakte van 238m² en heeft 5 kamers kamers waarvan 4 slaapkamers. De geschatte waarde van deze woning is € 245.000.

Bekijk alle woningen in Kikkerveen

Gegevens van Eengezinswoning, hoekwoning

Bouwjaar
1973
Geschatte waarde
€ 245.000
Oppervlakte
132 m2
Inhoud
434 m3
Aantal kamers
5 kamers
Slaapkamers
4
Badkamers
1 badkamer en 1 apart toilet
Soort bouw
Bestaande bouw
Eigendomssituatie
Volle eigendom
Ligging
Aan rustige weg en in woonwijk
Tuin
Achtertuin, voortuin en zijtuin
Achtertuin
125 m² (12,5m diep en 10m breed)

Voorzieningen in de buurt

Boodschappen0,7 km
Grote supermarkt0,7 km
Cafetaria0,9 km
Restaurant0,7 km
Huisarts0,7 km
Ziekenhuis2,0 km
Kinderdagverblijf0,9 km
BSO0,9 km
Alle voorzieningen in Kikkerveen

Binnenkijken bij Kikkerveen 135 te Spijkenisse

Meer meldingen in deze omgeving

112 melding
Donderdag 20-11-2025 om 18:53
Kikkerveen, 3205XA Spijkenisse

112 melding
Zondag 16-11-2025 om 13:14
Kikkerveen, 3205XA Spijkenisse

112 melding
Zondag 2-11-2025 om 20:48
Kikkerveen, 3205XD Spijkenisse

112 melding
Donderdag 16-10-2025 om 17:16
Kikkerveen, 3205XD Spijkenisse

112 melding
Dinsdag 14-10-2025 om 22:35
Kikkerveen, 3205XH Spijkenisse

112 melding
Donderdag 9-10-2025 om 14:18
Kikkerveen, 3205XD Spijkenisse

112 melding
Donderdag 9-10-2025 om 14:17
Kikkerveen, Spijkenisse

112 melding
Vrijdag 26-9-2025 om 14:42
Kikkerveen, 3205XA Spijkenisse

Direct een e-mail ontvangen bij nieuwe meldingen in deze regio?

Meld je dan GRATIS aan voor de Oozo Alert service voor Kikkerveen

Instellen

Meer nieuws in Kikkerveen

Weten hoe eenvoudig het is om af te vallen? Zonder pillen en smeersels en zonder je in het zweet te werken!
Kijk op eenvoudig-afvallen.nl

© 2012 - 2025 OOZO.nl - info@oozo.nl - Gegevens verwijderen? | Disclaimer | Privacy statement