Woning Entinge 31 Roden

Entinge 31, 9301TT Roden

Ontvang updates voor Roden West

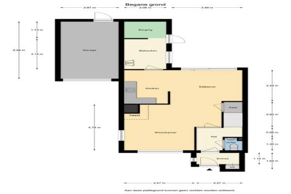
Het adres van deze woning uit 1985 is Entinge 31 te Roden. Het pand heeft een oppervlakte van 142m² en een perceeloppervlakte van 286m² en heeft 5 kamers kamers waarvan 4 slaapkamers. De geschatte waarde van deze woning is € 390.000.

Bekijk alle woningen in Roden West

Gegevens van Eengezinswoning, geschakelde woning

Bouwjaar
1985
Geschatte waarde
€ 390.000
Oppervlakte
142 m2
Inhoud
567 m3
Aantal kamers
5 kamers
Slaapkamers
4
Badkamers
2 badkamers en 2 aparte toiletten
Soort bouw
Bestaande bouw
Eigendomssituatie
Volle eigendom
Ligging
Aan park, aan rustige weg, in woonwijk en vrij uitzicht
Tuin
Achtertuin en voortuin
Achtertuin
108 m² (12,00 meter diep en 9,00 meter breed)

Voorzieningen in de buurt

Boodschappen1,1 km
Grote supermarkt1,1 km
Cafetaria1,0 km
Restaurant1,3 km
Huisarts0,9 km
Ziekenhuis14,5 km
Kinderdagverblijf0,9 km
BSO0,7 km
Alle voorzieningen in Roden West

Binnenkijken bij Entinge 31 te Roden

Meer meldingen in deze omgeving

Binnenkijken bij
Zaterdag 17-1-2026
Kamille 31, 9302BL Roden

Binnenkijken bij
Donderdag 15-1-2026
Schonauwen 29, 9301SN Roden

Binnenkijken bij
Donderdag 15-1-2026
Liester 18, 9302CC Roden

Binnenkijken bij
Donderdag 15-1-2026
Duinakker 10, 9302DD Roden

Binnenkijken bij
Donderdag 15-1-2026
Wiltenmaat 8, 9302GB Roden

Binnenkijken bij
Donderdag 15-1-2026
Gouwland 12, 9302GJ Roden

Binnenkijken bij
Vrijdag 9-1-2026
Oldengaerde 26, 9301WS Roden

Binnenkijken bij
Vrijdag 9-1-2026
de Klencke 40, 9301SZ Roden

Direct een e-mail ontvangen bij nieuwe meldingen in deze regio?

Meld je dan GRATIS aan voor de Oozo Alert service voor Roden West

Instellen

Meer nieuws in Roden West

Weten hoe eenvoudig het is om af te vallen? Zonder pillen en smeersels en zonder je in het zweet te werken!
Kijk op eenvoudig-afvallen.nl

© 2012 - 2026 OOZO.nl - info@oozo.nl - Gegevens verwijderen? | Disclaimer | Privacy statement