Bouwgrond Weidesleep kavel 305 + 306 Bant

Weidesleep kavel 305 + 306, 8314BM Bant

Ontvang updates voor Bant

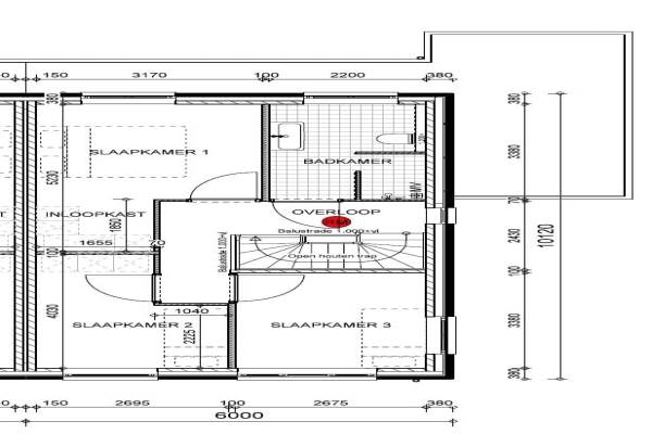
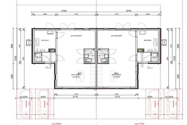
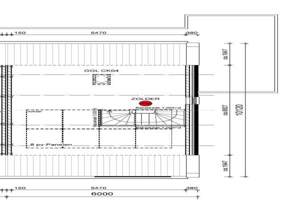
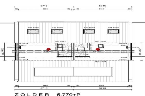
Het adres van dit kavel is Weidesleep kavel 305 + 306 te Bant. Het pand heeft een oppervlakte van 100m² en een perceeloppervlakte van 372m² en heeft 5 kamers kamers waarvan 3 slaapkamers. De geschatte waarde van dit kavel is € 413.700.

Bekijk alle woningen in Bant

Gegevens van Eengezinswoning, 2-onder-1-kapwoning

Bouwjaar
2026
Geschatte waarde
€ 413.700
Oppervlakte
100 m2
Inhoud
405 m3
Aantal kamers
5 kamers
Slaapkamers
3
Badkamers
1 apart toilet
Soort bouw
Nieuwbouw
Eigendomssituatie
Volle eigendom
Ligging
Aan rustige weg en in woonwijk
Tuin
Achtertuin, voortuin en zijtuin

Voorzieningen in de buurt

Boodschappen6,2 km
Grote supermarkt1,4 km
Cafetaria7,0 km
Restaurant6,0 km
Huisarts6,4 km
Ziekenhuis8,3 km
Kinderdagverblijf1,5 km
BSO1,6 km
Alle voorzieningen in Bant

Binnenkijken bij Weidesleep kavel 305 + 306 te Bant

Meer meldingen in deze omgeving

Binnenkijken bij
Zaterdag 14-2-2026
Sportsingel 10, 8314AS Bant

112 melding
Zondag 8-2-2026 om 00:40
De Markeur, 8314AZ Bant

Video
Donderdag 5-2-2026
Noordoostpolder

Video
Donderdag 5-2-2026
Noordoostpolder

Video
Donderdag 5-2-2026
Noordoostpolder

Video
Donderdag 5-2-2026
Noordoostpolder



Direct een e-mail ontvangen bij nieuwe meldingen in deze regio?

Meld je dan GRATIS aan voor de Oozo Alert service voor Bant

Instellen

Meer nieuws in Bant

Weten hoe eenvoudig het is om af te vallen? Zonder pillen en smeersels en zonder je in het zweet te werken!
Kijk op eenvoudig-afvallen.nl

© 2012 - 2026 OOZO.nl - info@oozo.nl - Gegevens verwijderen? | Disclaimer | Privacy statement