Woning Zevenwouden 5 Emmeloord

Zevenwouden 5, 8302LB Emmeloord

Ontvang updates voor Emmeloord-de Erven

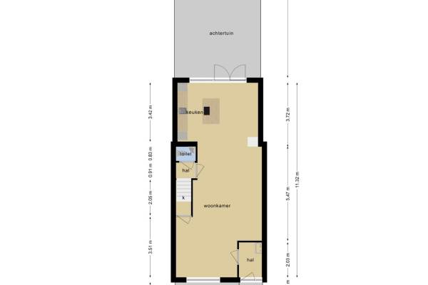
Het adres van deze woning uit 1994 is Zevenwouden 5 te Emmeloord. Het pand heeft een oppervlakte van 114m² en een perceeloppervlakte van 148m² en heeft 5 kamers kamers waarvan 4 slaapkamers. De geschatte waarde van deze woning is € 280.000.

Bekijk alle woningen in Emmeloord-de Erven

Gegevens van -

Bouwjaar
1994
Geschatte waarde
€ 280.000
Oppervlakte
114 m2
Inhoud
358 m3
Aantal kamers
5 kamers
Slaapkamers
4
Badkamers
1 badkamer en 1 apart toilet
Soort bouw
Bestaande bouw
Eigendomssituatie
Volle eigendom
Ligging
Aan rustige weg en in woonwijk
Tuin
Achtertuin en voortuin
Achtertuin
50 m² (10 meter diep en 5 meter breed)

Voorzieningen in de buurt

Boodschappen2,1 km
Grote supermarkt0,7 km
Cafetaria0,7 km
Restaurant0,7 km
Huisarts2,3 km
Ziekenhuis2,8 km
Kinderdagverblijf0,9 km
BSO1,0 km
Alle voorzieningen in Emmeloord-de Erven

Binnenkijken bij Zevenwouden 5 te Emmeloord

Meer meldingen in deze omgeving

Nieuw bedrijf
November 2025
Schouwen 2, 8302PH Emmeloord

Nieuw bedrijf
November 2025
Land van Saaftinge 9, 8302PE Emmeloord

Nieuw bedrijf
November 2025
Schouwen 41, 8302PG Emmeloord

Nieuw bedrijf
November 2025
Overflakkee 38, 8302NX Emmeloord

Nieuw bedrijf
November 2025
Overflakkee 51, 8302NZ Emmeloord

Binnenkijken bij
Zondag 16-11-2025
Zevenwouden 19, 8302LB Emmeloord

Binnenkijken bij
Vrijdag 14-11-2025
Vijfheerenlanden 5, 8302MJ Emmeloord

Nieuw bedrijf
November 2025
Schieland 7, 8302NK Emmeloord

Direct een e-mail ontvangen bij nieuwe meldingen in deze regio?

Meld je dan GRATIS aan voor de Oozo Alert service voor Emmeloord-de Erven

Instellen

Meer nieuws in Emmeloord-de Erven

Weten hoe eenvoudig het is om af te vallen? Zonder pillen en smeersels en zonder je in het zweet te werken!
Kijk op eenvoudig-afvallen.nl

© 2012 - 2025 OOZO.nl - info@oozo.nl - Gegevens verwijderen? | Disclaimer | Privacy statement