Woning Plesmanhage 21 Emmeloord

Plesmanhage 21, 8302ZP Emmeloord

Ontvang updates voor Emmeloord-Emmelhage-Boswonen

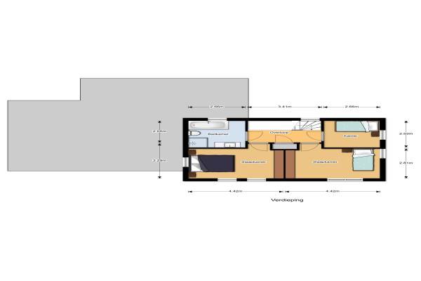
Het adres van deze woning uit 2018 is Plesmanhage 21 te Emmeloord. Het pand heeft een oppervlakte van 150m² en een perceeloppervlakte van 526m² en heeft 5 kamers kamers waarvan 3 slaapkamers. De geschatte waarde van deze woning is € 436.500.

Bekijk alle woningen in Emmeloord-Emmelhage-Boswonen

Gegevens van Eengezinswoning, vrijstaande woning

Bouwjaar
2018
Geschatte waarde
€ 436.500
Oppervlakte
150 m2
Inhoud
580 m3
Aantal kamers
5 kamers
Slaapkamers
3
Badkamers
2 aparte toiletten
Soort bouw
Nieuwbouw
Eigendomssituatie
Volle eigendom
Tuin
Tuin rondom

Voorzieningen in de buurt

Boodschappen2,6 km
Grote supermarkt2,6 km
Cafetaria2,9 km
Restaurant2,7 km
Huisarts2,5 km
Ziekenhuis3,5 km
Kinderdagverblijf0,6 km
BSO2,4 km
Alle voorzieningen in Emmeloord-Emmelhage-Boswonen

Binnenkijken bij Plesmanhage 21 te Emmeloord

Meer meldingen in deze omgeving

Binnenkijken bij
Zondag 25-1-2026
Jeanne d'Arclaan 43, 8302ZB Emmeloord

Nieuw bedrijf
Januari 2026
Einsteinhage 11, 8302WN Emmeloord

Nieuw bedrijf
Januari 2026
Jeanne d'Arclaan 15, 8302ZB Emmeloord

Nieuw bedrijf
Januari 2026
Niels Bohrhage 45, 8302WV Emmeloord

Nieuw bedrijf
Januari 2026
Huygenshage 2, 8302ZC Emmeloord

Binnenkijken bij
Dinsdag 13-1-2026
Mathilde Wibautsingel 35, 8302WR Emmeloord

Faillissement
Vrijdag 9-1-2026
Jeanne d'Arclaan 41, 8302ZB Emmeloord

Binnenkijken bij
Woensdag 7-1-2026
Mathilde Wibautsingel 13, 8302WR Emmeloord

Direct een e-mail ontvangen bij nieuwe meldingen in deze regio?

Meld je dan GRATIS aan voor de Oozo Alert service voor Emmeloord-Emmelhage-Boswonen

Instellen

Meer nieuws in Emmeloord-Emmelhage-Boswonen

Weten hoe eenvoudig het is om af te vallen? Zonder pillen en smeersels en zonder je in het zweet te werken!
Kijk op eenvoudig-afvallen.nl

© 2012 - 2026 OOZO.nl - info@oozo.nl - Gegevens verwijderen? | Disclaimer | Privacy statement