Woning Tollebekerweg 8 Espel

Tollebekerweg 8, 8311PM Espel

Ontvang updates voor Espel-landelijk gebied

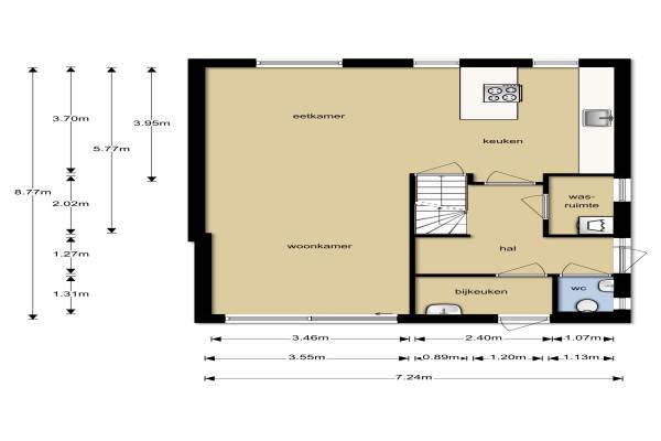
Het adres van deze woning uit 1955 is Tollebekerweg 8 te Espel. Het pand heeft een oppervlakte van 128m² en een perceeloppervlakte van 878m² en heeft 4 kamers kamers waarvan 3 slaapkamers. De geschatte waarde van deze woning is € 267.500.

Bekijk alle woningen in Espel-landelijk gebied

Gegevens van Eengezinswoning, 2-onder-1-kapwoning

Bouwjaar
1955
Geschatte waarde
€ 267.500
Oppervlakte
128 m2
Inhoud
288 m3
Aantal kamers
4 kamers
Slaapkamers
3
Badkamers
1 badkamer en 1 apart toilet
Soort bouw
Bestaande bouw
Eigendomssituatie
Volle eigendom
Ligging
Aan rustige weg, vrij uitzicht, buiten bebouwde kom en landelijk gelegen
Tuin
Achtertuin, voortuin en zijtuin

Voorzieningen in de buurt

Boodschappen7,3 km
Grote supermarkt2,8 km
Cafetaria6,3 km
Restaurant2,8 km
Huisarts5,4 km
Ziekenhuis8,8 km
Kinderdagverblijf2,5 km
BSO2,8 km
Alle voorzieningen in Espel-landelijk gebied

Binnenkijken bij Tollebekerweg 8 te Espel

Meer meldingen in deze omgeving

Binnenkijken bij
Vrijdag 17-10-2025
Onderduikersweg 46B, 8311RE Espel

112 melding
Dinsdag 14-10-2025 om 18:54
Ankerpad, Espel

Nieuw bedrijf
Oktober 2025
Westermeerweg 47A, 8311PG Espel

Nieuw bedrijf
September 2025
Westermeerweg 27A, 8311PE Espel

112 melding
Donderdag 21-8-2025 om 16:43
Tollebekerweg, 8311PM Espel

112 melding
Maandag 18-8-2025 om 15:14
Espelerpad, Espel

112 melding
Maandag 18-8-2025 om 15:13
Espelerpad, Espel

112 melding
Woensdag 30-7-2025 om 16:03
Tollebekerweg, 8311PM Espel

Direct een e-mail ontvangen bij nieuwe meldingen in deze regio?

Meld je dan GRATIS aan voor de Oozo Alert service voor Espel-landelijk gebied

Instellen

Meer nieuws in Espel-landelijk gebied

Weten hoe eenvoudig het is om af te vallen? Zonder pillen en smeersels en zonder je in het zweet te werken!
Kijk op eenvoudig-afvallen.nl

© 2012 - 2025 OOZO.nl - info@oozo.nl - Gegevens verwijderen? | Disclaimer | Privacy statement