Woning Pieter Bedijnstraat 22 Noordwijk Zh

Pieter Bedijnstraat 22, 2202VK Noordwijk Zh

Ontvang updates voor De Noord

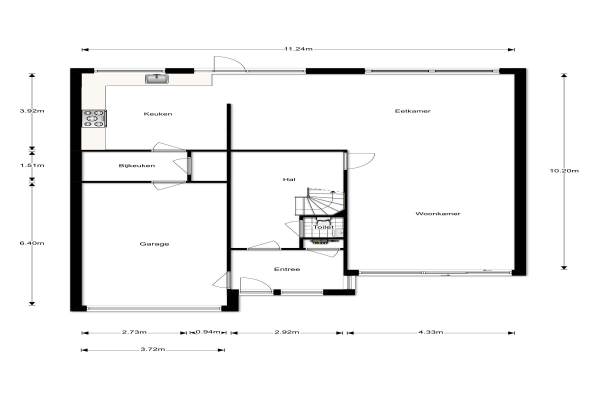
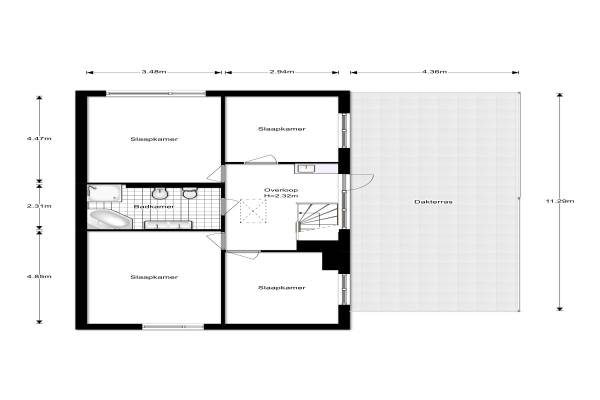
Het adres van deze woning uit 1977 is Pieter Bedijnstraat 22 te Noordwijk Zh. Het pand heeft een oppervlakte van 179m² en een perceeloppervlakte van 322m² en heeft 6 kamers kamers waarvan 4 slaapkamers. De geschatte waarde van deze woning is € 769.000.

Bekijk alle woningen in De Noord

Gegevens van Villa, geschakelde woning (drive-in woning)

Bouwjaar
1977
Geschatte waarde
€ 769.000
Oppervlakte
179 m2
Inhoud
610 m3
Aantal kamers
6 kamers
Slaapkamers
4
Badkamers
1 badkamer en 1 apart toilet
Soort bouw
Bestaande bouw
Eigendomssituatie
Volle eigendom
Ligging
Aan rustige weg, in woonwijk en vrij uitzicht
Tuin
Zonneterras en achtertuin
Achtertuin
103 m² (9m diep en 11,4m breed)

Voorzieningen in de buurt

Boodschappen0,4 km
Grote supermarkt1,1 km
Cafetaria0,6 km
Restaurant0,4 km
Huisarts0,5 km
Ziekenhuis7,8 km
Kinderdagverblijf0,4 km
BSO0,4 km
Alle voorzieningen in De Noord

Binnenkijken bij Pieter Bedijnstraat 22 te Noordwijk Zh

Meer meldingen in deze omgeving

112 melding
Dinsdag 18-11-2025 om 11:28
Groot Hoogwaak, Noordwijk

112 melding
Dinsdag 18-11-2025 om 11:13
Pieter Bedijnstraat, 2202VK Noordwijk

112 melding
Dinsdag 18-11-2025 om 11:04
Groot Hoogwaak, Noordwijk

Nieuw bedrijf
November 2025
Willem-Alexanderpark 23, 2202XW Noordwijk

112 melding
Maandag 17-11-2025 om 17:36
Groot Hoogwaak, Noordwijk

112 melding
Maandag 17-11-2025 om 14:07
Pieter Bedijnstraat, 2202VK Noordwijk

112 melding
Maandag 17-11-2025 om 14:07
Pieter Bedijnstraat, 2202VK Noordwijk

112 melding
Maandag 17-11-2025 om 10:17
Wantveld, 2202NS Noordwijk

Direct een e-mail ontvangen bij nieuwe meldingen in deze regio?

Meld je dan GRATIS aan voor de Oozo Alert service voor De Noord

Instellen

Meer nieuws in De Noord

Weten hoe eenvoudig het is om af te vallen? Zonder pillen en smeersels en zonder je in het zweet te werken!
Kijk op eenvoudig-afvallen.nl

© 2012 - 2025 OOZO.nl - info@oozo.nl - Gegevens verwijderen? | Disclaimer | Privacy statement