Woning Zeewijck 10 Noordwijk Zh

Zeewijck 10, 2202BT Noordwijk Zh

Ontvang updates voor Villawijk-Zuid

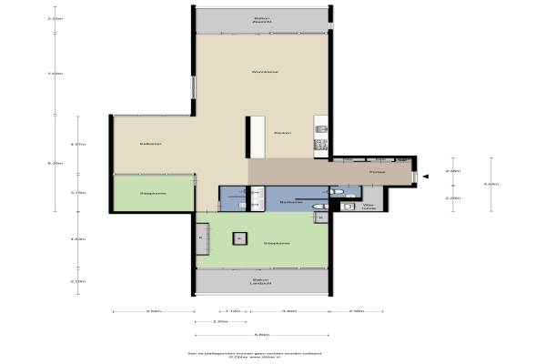
Het adres van deze woning uit 1980 is Zeewijck 10 te Noordwijk Zh. Het pand heeft een oppervlakte van 169m² en heeft 4 kamers kamers waarvan 2 slaapkamers. De geschatte waarde van deze woning is € 1.350.000.

Bekijk alle woningen in Villawijk-Zuid

Gegevens van Portiekflat (appartement)

Bouwjaar
1980
Geschatte waarde
€ 1.350.000
Oppervlakte
169 m2
Inhoud
440 m3
Aantal kamers
4 kamers
Slaapkamers
2
Badkamers
2 badkamers en 1 apart toilet
Soort bouw
Bestaande bouw
Eigendomssituatie
Volle eigendom
Ligging
Aan water, vrij uitzicht en aan vaarwater
Tuin
Zonneterras

Voorzieningen in de buurt

Boodschappen0,7 km
Grote supermarkt0,8 km
Cafetaria0,7 km
Restaurant0,3 km
Huisarts1,4 km
Ziekenhuis7,0 km
Kinderdagverblijf1,0 km
BSO1,0 km
Alle voorzieningen in Villawijk-Zuid

Binnenkijken bij Zeewijck 10 te Noordwijk Zh

Meer meldingen in deze omgeving

112 melding
Maandag 23-3-2026 om 12:52
Koningin Astrid Boulevard, 2202BK Noordwijk

Binnenkijken bij
Zondag 22-3-2026
Oude Zeeweg 78D, 2202CE Noordwijk (ZH)

Binnenkijken bij
Zondag 22-3-2026
Atjehweg 9, 2202AM Noordwijk (ZH)

112 melding
Zaterdag 21-3-2026 om 12:06
Oude Zeeweg, 2202CJ Noordwijk

112 melding
Zaterdag 21-3-2026 om 09:02
Koningin Astrid Boulevard, 2202BK Noordwijk

112 melding
Zaterdag 21-3-2026 om 09:02
Koningin Astrid Boulevard, 2202BK Noordwijk

112 melding
Zaterdag 21-3-2026 om 02:38
Koningin Astrid Boulevard, Noordwijk

112 melding
Vrijdag 20-3-2026 om 13:31
Koningin Astrid Boulevard, 2202 Noordwijk

Direct een e-mail ontvangen bij nieuwe meldingen in deze regio?

Meld je dan GRATIS aan voor de Oozo Alert service voor Villawijk-Zuid

Instellen

Meer nieuws in Villawijk-Zuid

Weten hoe eenvoudig het is om af te vallen? Zonder pillen en smeersels en zonder je in het zweet te werken!
Kijk op eenvoudig-afvallen.nl

© 2012 - 2026 OOZO.nl - info@oozo.nl - Gegevens verwijderen? | Disclaimer | Privacy statement