Woning Obliehoren 46 Noordwijk Zh

Obliehoren 46, 2201VG Noordwijk Zh

Ontvang updates voor Beeklaan-kwartier

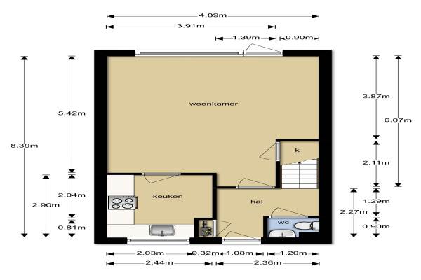
Het adres van deze woning uit 1984 is Obliehoren 46 te Noordwijk Zh. Het pand heeft een oppervlakte van 93m² en een perceeloppervlakte van 116m² en heeft 5 kamers kamers waarvan 4 slaapkamers. De geschatte waarde van deze woning is € 299.000.

Bekijk alle woningen in Beeklaan-kwartier

Gegevens van Eengezinswoning, tussenwoning

Bouwjaar
1984
Geschatte waarde
€ 299.000
Oppervlakte
93 m2
Inhoud
315 m3
Aantal kamers
5 kamers
Slaapkamers
4
Badkamers
1 badkamer en 1 apart toilet
Soort bouw
Bestaande bouw
Eigendomssituatie
Volle eigendom
Ligging
Aan rustige weg en in woonwijk
Tuin
Achtertuin en voortuin
Achtertuin
54 m² (12m diep en 4,5m breed)

Voorzieningen in de buurt

Boodschappen0,9 km
Grote supermarkt0,4 km
Cafetaria0,8 km
Restaurant0,7 km
Huisarts0,5 km
Ziekenhuis5,5 km
Kinderdagverblijf0,3 km
BSO0,4 km
Alle voorzieningen in Beeklaan-kwartier

Binnenkijken bij Obliehoren 46 te Noordwijk Zh

Meer meldingen in deze omgeving

112 melding
Dinsdag 11-11-2025 om 14:23
Alk, 2201XP Noordwijk

Binnenkijken bij
Dinsdag 11-11-2025
Tolhoren 50, 2201VL Noordwijk (ZH)

Binnenkijken bij
Dinsdag 11-11-2025
Springtij 46, 2201WG Noordwijk (ZH)

Binnenkijken bij
Dinsdag 11-11-2025
Losplaatskade 17, 2201DB Noordwijk (ZH)

112 melding
Dinsdag 11-11-2025 om 12:08
Hoogtij, 2201WC Noordwijk

112 melding
Dinsdag 11-11-2025 om 12:08
Hoogtij, 2201WC Noordwijk

Binnenkijken bij
Dinsdag 11-11-2025
Beeklaan 162, 2201BJ Noordwijk (ZH)

112 melding
Dinsdag 11-11-2025 om 11:36
Tulpstraat, Noordwijk

Direct een e-mail ontvangen bij nieuwe meldingen in deze regio?

Meld je dan GRATIS aan voor de Oozo Alert service voor Beeklaan-kwartier

Instellen

Meer nieuws in Beeklaan-kwartier

Weten hoe eenvoudig het is om af te vallen? Zonder pillen en smeersels en zonder je in het zweet te werken!
Kijk op eenvoudig-afvallen.nl

© 2012 - 2025 OOZO.nl - info@oozo.nl - Gegevens verwijderen? | Disclaimer | Privacy statement