Woning Donkervoort 37 Nuenen

Donkervoort 37, 5673BV Nuenen

Ontvang updates voor Nuenen-Oost

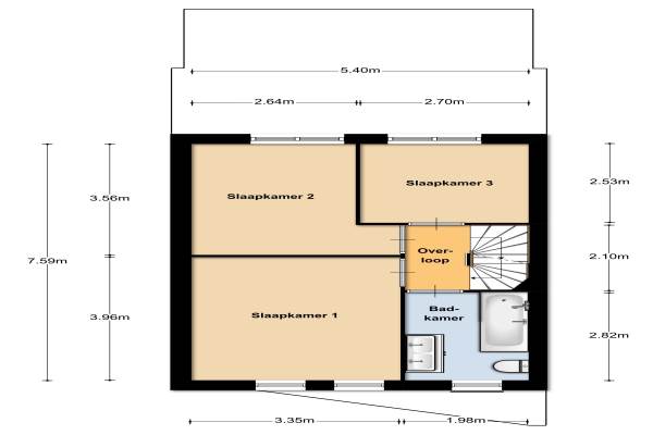
Het adres van deze woning uit 1994 is Donkervoort 37 te Nuenen. Het pand heeft een oppervlakte van 111m² en een perceeloppervlakte van 178m² en heeft 5 kamers kamers waarvan 4 slaapkamers. De geschatte waarde van deze woning is € 310.000.

Bekijk alle woningen in Nuenen-Oost

Gegevens van Eengezinswoning, hoekwoning

Bouwjaar
1994
Geschatte waarde
€ 310.000
Oppervlakte
111 m2
Inhoud
420 m3
Aantal kamers
5 kamers
Slaapkamers
4
Badkamers
1 badkamer en 1 apart toilet
Soort bouw
Bestaande bouw
Eigendomssituatie
Volle eigendom
Ligging
Aan rustige weg, in woonwijk, vrij uitzicht en in bosrijke omgeving
Tuin
Achtertuin en voortuin
Achtertuin
67 m² (11,5m diep en 5,85m breed)

Voorzieningen in de buurt

Boodschappen1,4 km
Grote supermarkt1,3 km
Cafetaria0,7 km
Restaurant1,1 km
Huisarts0,5 km
Ziekenhuis6,5 km
Kinderdagverblijf0,8 km
BSO0,8 km
Alle voorzieningen in Nuenen-Oost

Binnenkijken bij Donkervoort 37 te Nuenen

Meer meldingen in deze omgeving

Binnenkijken bij
Zaterdag 7-2-2026
Vogelsgaarde 12, 5673AK Nuenen

Binnenkijken bij
Zaterdag 7-2-2026
Stephan Hanewinkellaan 42, 5673MT Nuenen

Binnenkijken bij
Donderdag 5-2-2026
Schutterijakker 35, 5673MD Nuenen

Binnenkijken bij
Donderdag 5-2-2026
Schutterijakker 3, 5673MD Nuenen

Nieuw bedrijf
Februari 2026
Vonderrijt 7, 5673BZ Nuenen

112 melding
Woensdag 4-2-2026 om 21:32
Tomakker, Nuenen

Binnenkijken bij
Vrijdag 30-1-2026
Schout Diercxlaan 35, 5673RE Nuenen

Nieuw bedrijf
Januari 2026
De Doorn 74, 5673LP Nuenen

Direct een e-mail ontvangen bij nieuwe meldingen in deze regio?

Meld je dan GRATIS aan voor de Oozo Alert service voor Nuenen-Oost

Instellen

Meer nieuws in Nuenen-Oost

Weten hoe eenvoudig het is om af te vallen? Zonder pillen en smeersels en zonder je in het zweet te werken!
Kijk op eenvoudig-afvallen.nl

© 2012 - 2026 OOZO.nl - info@oozo.nl - Gegevens verwijderen? | Disclaimer | Privacy statement