Woning De Vroente 66 Nuenen

De Vroente 66, 5672TN Nuenen

Ontvang updates voor Nuenen-Zuid

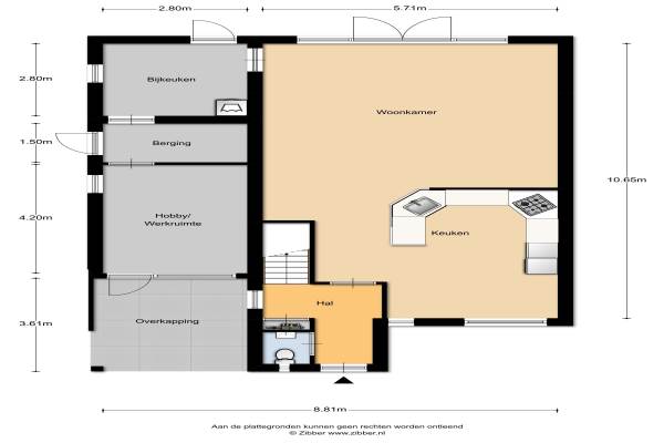
Het adres van deze woning uit 1978 is De Vroente 66 te Nuenen. Het pand heeft een oppervlakte van 165m² en een perceeloppervlakte van 220m² en heeft 7 kamers kamers waarvan 4 slaapkamers. De geschatte waarde van deze woning is € 329.000.

Bekijk alle woningen in Nuenen-Zuid

Gegevens van Eengezinswoning, hoekwoning

Bouwjaar
1978
Geschatte waarde
€ 329.000
Oppervlakte
165 m2
Inhoud
585 m3
Aantal kamers
7 kamers
Slaapkamers
4
Badkamers
1 badkamer en 1 apart toilet
Soort bouw
Bestaande bouw
Eigendomssituatie
Volle eigendom
Ligging
Aan rustige weg en in woonwijk
Tuin
Achtertuin en voortuin
Achtertuin
85 m² (9,75m diep en 9m breed)

Voorzieningen in de buurt

Boodschappen0,6 km
Grote supermarkt0,7 km
Cafetaria0,7 km
Restaurant1,2 km
Huisarts1,6 km
Ziekenhuis5,4 km
Kinderdagverblijf0,7 km
BSO0,7 km
Alle voorzieningen in Nuenen-Zuid

Binnenkijken bij De Vroente 66 te Nuenen

Meer meldingen in deze omgeving

112 melding
Woensdag 17-12-2025 om 21:24
De Vroente, Nuenen

Nieuw bedrijf
December 2025
Opwettenseweg 74, 5672AJ Nuenen

Nieuw bedrijf
December 2025
Dalkruiddreef 6, 5672BA Nuenen

Onroerend goed
Donderdag 11-12-2025
De Pinckart 46-E, 5674CC Nuenen

Nieuw bedrijf
December 2025
De Pinckart 54, 5674CC Nuenen

Binnenkijken bij
Woensdag 10-12-2025
Refelingse Erven 66, 5672TG Nuenen

Nieuw bedrijf
December 2025
Wielewaallaan 28, 5672EZ Nuenen

Nieuw bedrijf
December 2025
Zuiderklamp 8, 5672HD Nuenen

Direct een e-mail ontvangen bij nieuwe meldingen in deze regio?

Meld je dan GRATIS aan voor de Oozo Alert service voor Nuenen-Zuid

Instellen

Meer nieuws in Nuenen-Zuid

Weten hoe eenvoudig het is om af te vallen? Zonder pillen en smeersels en zonder je in het zweet te werken!
Kijk op eenvoudig-afvallen.nl

© 2012 - 2025 OOZO.nl - info@oozo.nl - Gegevens verwijderen? | Disclaimer | Privacy statement