Woning Draviklaan 42 Nuenen

Draviklaan 42, 5672BZ Nuenen

Ontvang updates voor Nuenen-Zuid

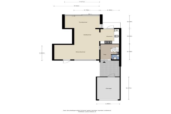
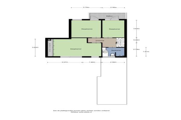
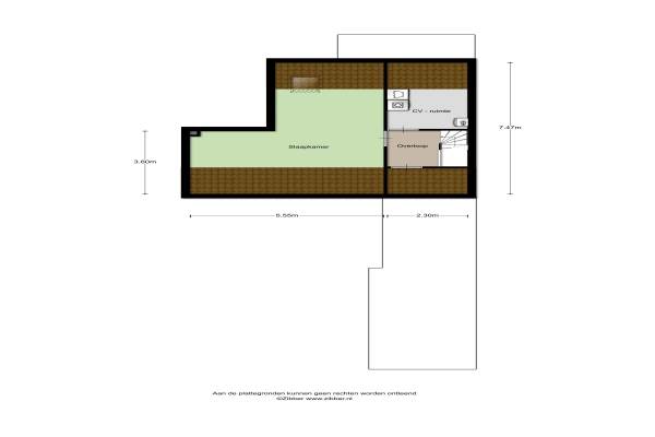
Het adres van deze woning uit 1973 is Draviklaan 42 te Nuenen. Het pand heeft een oppervlakte van 146m² en een perceeloppervlakte van 226m² en heeft 5 kamers kamers waarvan 4 slaapkamers. De geschatte waarde van deze woning is € 309.500.

Bekijk alle woningen in Nuenen-Zuid

Gegevens van Eengezinswoning, geschakelde woning

Bouwjaar
1973
Geschatte waarde
€ 309.500
Oppervlakte
146 m2
Inhoud
410 m3
Aantal kamers
5 kamers
Slaapkamers
4
Badkamers
1 apart toilet
Soort bouw
Bestaande bouw
Eigendomssituatie
Volle eigendom
Ligging
Aan rustige weg, in woonwijk en vrij uitzicht
Tuin
Achtertuin en voortuin
Achtertuin
33 m² (5m diep en 6,5m breed)

Voorzieningen in de buurt

Boodschappen0,6 km
Grote supermarkt0,7 km
Cafetaria0,7 km
Restaurant1,2 km
Huisarts1,6 km
Ziekenhuis5,4 km
Kinderdagverblijf0,7 km
BSO0,7 km
Alle voorzieningen in Nuenen-Zuid

Binnenkijken bij Draviklaan 42 te Nuenen

Meer meldingen in deze omgeving

112 melding
Woensdag 5-11-2025 om 10:58
Hondsdrafstraat, 5672BB Nuenen

112 melding
Maandag 3-11-2025 om 11:58
Het Puyven, Nuenen

112 melding
Donderdag 30-10-2025 om 18:23
Jo van Dijkhof, 5672DA Nuenen

112 melding
Donderdag 30-10-2025 om 18:21
Jo van Dijkhof, 5672DA Nuenen

Binnenkijken bij
Woensdag 29-10-2025
Dalkruiddreef 2, 5672BA Nuenen

Binnenkijken bij
Woensdag 29-10-2025
Europalaan 212, 5672CD Nuenen

Nieuw bedrijf
Oktober 2025
De Vroente 97, 5672TV Nuenen

Nieuw bedrijf
Oktober 2025
Kuifmeeshof 3, 5672VM Nuenen

Direct een e-mail ontvangen bij nieuwe meldingen in deze regio?

Meld je dan GRATIS aan voor de Oozo Alert service voor Nuenen-Zuid

Instellen

Meer nieuws in Nuenen-Zuid

Weten hoe eenvoudig het is om af te vallen? Zonder pillen en smeersels en zonder je in het zweet te werken!
Kijk op eenvoudig-afvallen.nl

© 2012 - 2025 OOZO.nl - info@oozo.nl - Gegevens verwijderen? | Disclaimer | Privacy statement