Woning De Stille Wille 298 Oost West en Middelbeers

De Stille Wille 298, 5091WH Oost West en Middelbeers

Ontvang updates voor Verspreide huizen Spoordonk

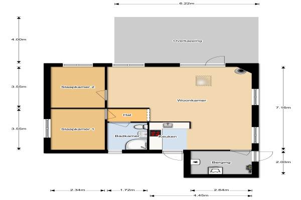
Het adres van deze woning uit 1988 is De Stille Wille 298 te Oost West en Middelbeers. Het pand heeft een oppervlakte van 62m² en een perceeloppervlakte van 480m² en heeft 3 kamers kamers waarvan 2 slaapkamers. De geschatte waarde van deze woning is € 149.500.

Bekijk alle woningen in Verspreide huizen Spoordonk

Gegevens van Bungalow, vrijstaande woning

Bouwjaar
1988
Geschatte waarde
€ 149.500
Oppervlakte
62 m2
Inhoud
222 m3
Aantal kamers
3 kamers
Slaapkamers
2
Badkamers
1 badkamer
Soort bouw
Bestaande bouw
Eigendomssituatie
E erfpacht (einddatum erfpacht: 31-12-2028)
Ligging
Aan rustige weg, beschutte ligging en in bosrijke omgeving
Tuin
Tuin rondom

Voorzieningen in de buurt

Boodschappen4,2 km
Grote supermarkt4,6 km
Cafetaria2,0 km
Restaurant2,1 km
Huisarts4,4 km
Ziekenhuis9,9 km
Kinderdagverblijf2,2 km
BSO2,2 km
Alle voorzieningen in Verspreide huizen Spoordonk

Binnenkijken bij De Stille Wille 298 te Oost West en Middelbeers

Meer meldingen in deze omgeving

112 melding
Woensdag 22-10-2025 om 09:32
Nieuwedijk, 5688LK Oirschot

Binnenkijken bij
Vrijdag 17-10-2025
Broekstraat 1A5, 5688JW Oirschot

Binnenkijken bij
Zondag 12-10-2025
De Stille Wille 116, 5091WD Oost West en Middelbeers

Onroerend goed
Donderdag 9-10-2025
Broekstraat 28, 5688JX Oirschot

Binnenkijken bij
Donderdag 9-10-2025
De Stille Wille 306, 5091WJ Oost West en Middelbeers

Nieuw bedrijf
Oktober 2025
Pastoor van Gestelstraat 8, 5688JZ Oirschot

Nieuw bedrijf
Oktober 2025
Langendonksedijk 2, 5688JS Oirschot

Nieuw bedrijf
Oktober 2025
Langendonksedijk 2, 5688JS Oirschot

Direct een e-mail ontvangen bij nieuwe meldingen in deze regio?

Meld je dan GRATIS aan voor de Oozo Alert service voor Verspreide huizen Spoordonk

Instellen

Meer nieuws in Verspreide huizen Spoordonk

Weten hoe eenvoudig het is om af te vallen? Zonder pillen en smeersels en zonder je in het zweet te werken!
Kijk op eenvoudig-afvallen.nl

© 2012 - 2025 OOZO.nl - info@oozo.nl - Gegevens verwijderen? | Disclaimer | Privacy statement