Woning Deken Swaensstraat 12 Oisterwijk

Deken Swaensstraat 12, 5062AL Oisterwijk

Ontvang updates voor Omg. "Burghtweide"

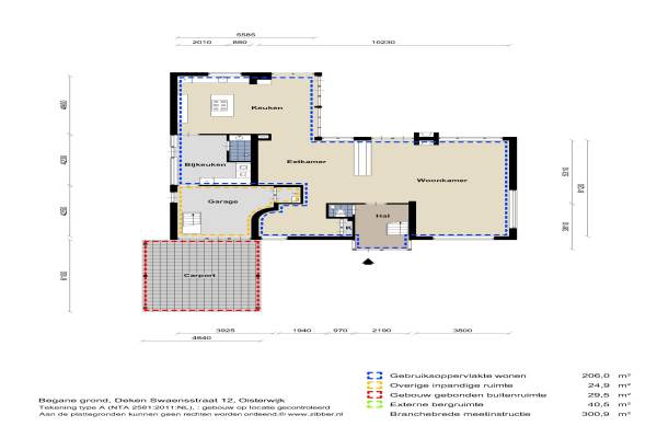
Het adres van deze woning uit 1970 is Deken Swaensstraat 12 te Oisterwijk. Het pand heeft een oppervlakte van 206m² en een perceeloppervlakte van 1138m² en heeft 6 kamers kamers waarvan 4 slaapkamers. De geschatte waarde van deze woning is € 1.095.000.

Bekijk alle woningen in Omg. "Burghtweide"

Gegevens van Eengezinswoning, vrijstaande woning

Bouwjaar
1970
Geschatte waarde
€ 1.095.000
Oppervlakte
206 m2
Inhoud
785 m3
Aantal kamers
6 kamers
Slaapkamers
4
Badkamers
1 badkamer en 1 apart toilet
Soort bouw
Bestaande bouw
Eigendomssituatie
Volle eigendom
Ligging
Aan water, aan park, aan rustige weg, in woonwijk, vrij uitzicht en in bosrijke omgeving
Tuin
Tuin rondom en zonneterras

Voorzieningen in de buurt

Boodschappen0,7 km
Grote supermarkt0,6 km
Cafetaria0,7 km
Restaurant0,6 km
Huisarts2,2 km
Ziekenhuis2,3 km
Kinderdagverblijf0,5 km
BSO0,6 km
Alle voorzieningen in Omg. "Burghtweide"

Binnenkijken bij Deken Swaensstraat 12 te Oisterwijk

Meer meldingen in deze omgeving

Binnenkijken bij
Vrijdag 28-11-2025
Esschebaan 92, 5062BD Oisterwijk

112 melding
Dinsdag 25-11-2025 om 12:11
Waterborgh, 5062DD Oisterwijk

112 melding
Dinsdag 25-11-2025 om 07:42
Schout van Engelenstraat, 5062AS Oisterwijk

112 melding
Maandag 24-11-2025 om 11:48
Waterborgh, 5062DD Oisterwijk

112 melding
Maandag 24-11-2025 om 09:28
Schout van Engelenstraat, 5062AS Oisterwijk

112 melding
Maandag 24-11-2025 om 09:28
Schout van Engelenstraat, 5062AS Oisterwijk

112 melding
Maandag 17-11-2025 om 13:36
Deken Swaensstraat, 5062AL Oisterwijk

112 melding
Zondag 16-11-2025 om 11:43
Deken Swaensstraat, 5062AL Oisterwijk

Direct een e-mail ontvangen bij nieuwe meldingen in deze regio?

Meld je dan GRATIS aan voor de Oozo Alert service voor Omg. "Burghtweide"

Instellen

Meer nieuws in Omg. "Burghtweide"

Weten hoe eenvoudig het is om af te vallen? Zonder pillen en smeersels en zonder je in het zweet te werken!
Kijk op eenvoudig-afvallen.nl

© 2012 - 2025 OOZO.nl - info@oozo.nl - Gegevens verwijderen? | Disclaimer | Privacy statement