Woning Dwarsstraat 3 Finsterwolde

Dwarsstraat 3, 9684AN Finsterwolde

Ontvang updates voor Finsterwolde Hardenberg

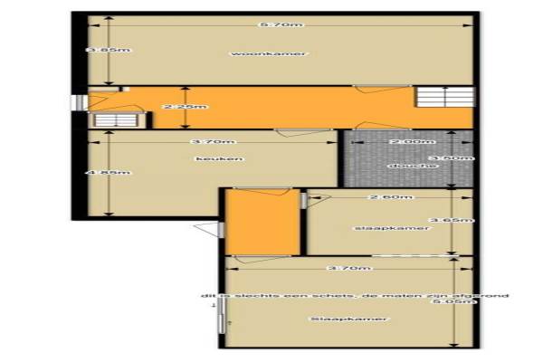
Het adres van deze woning uit 1935 is Dwarsstraat 3 te Finsterwolde. Het pand heeft een oppervlakte van 110m² en een perceeloppervlakte van 460m² en heeft 5 kamers kamers waarvan 5 slaapkamers. De geschatte waarde van deze woning is € 85.000.

Bekijk alle woningen in Finsterwolde Hardenberg

Gegevens van Eengezinswoning, 2-onder-1-kapwoning

Bouwjaar
1935
Geschatte waarde
€ 85.000
Oppervlakte
110 m2
Inhoud
300 m3
Aantal kamers
5 kamers
Slaapkamers
5
Badkamers
1 badkamer
Soort bouw
Bestaande bouw
Eigendomssituatie
Volle eigendom
Ligging
Aan rustige weg
Tuin
Zijtuin

Voorzieningen in de buurt

Boodschappen1,2 km
Grote supermarkt1,2 km
Cafetaria1,1 km
Restaurant2,0 km
Huisarts0,7 km
Ziekenhuis9,5 km
Kinderdagverblijf0,7 km
BSO0,6 km
Alle voorzieningen in Finsterwolde Hardenberg

Binnenkijken bij Dwarsstraat 3 te Finsterwolde

Meer meldingen in deze omgeving

Nieuw bedrijf
Oktober 2025
Veenweg 9, 9684AT Finsterwolde

112 melding
Maandag 22-9-2025 om 08:07
Molenstreek, Finsterwolde

112 melding
Vrijdag 5-9-2025 om 11:35
Veenweg, 9684AT Finsterwolde

Nieuw bedrijf
September 2025
Molenstreek 33, 9684AR Finsterwolde

Nieuw bedrijf
Juni 2025
Bospad 3, 9684AW Finsterwolde

112 melding
Dinsdag 20-5-2025 om 09:41
Bospad, 9684AW Finsterwolde

Binnenkijken bij
Maandag 12-5-2025
Kromme-elleboog 30, 9684XB Finsterwolde

Binnenkijken bij
Maandag 12-5-2025
Klinkerweg 83, 9684AB Finsterwolde

Direct een e-mail ontvangen bij nieuwe meldingen in deze regio?

Meld je dan GRATIS aan voor de Oozo Alert service voor Finsterwolde Hardenberg

Instellen

Meer nieuws in Finsterwolde Hardenberg

Weten hoe eenvoudig het is om af te vallen? Zonder pillen en smeersels en zonder je in het zweet te werken!
Kijk op eenvoudig-afvallen.nl

© 2012 - 2025 OOZO.nl - info@oozo.nl - Gegevens verwijderen? | Disclaimer | Privacy statement